In Creußens zentralster Lage erwartet Sie dieses ehemalige Fabrikgebäude mit separatem Wohnhaus und einer nutzbaren Gesamtfläche von ca. 1.981 m². Beide Anwesen liegen auf einem ca. 1.440 m² großen Grundstück, befinden sich in einem sehr gepflegten Zustand, sind leerstehend und damit sofort umbaubereit.
Für einen Highlightpreis von nur 400 € pro Quadratmeter nutzbarer Fläche erhalten Sie hier ein Objekt in zentralster Innenstadtlage, einem sehr gepflegten Zustand, sofort umbaubereit und einmaligem Potenzial, welches Sie so nicht wiederfinden werden.
Das gesamte Areal mit ca. 1.440 m² Grundstück besteht aus zwei verschiedenen Flurnummern, jeweils mit dem Fabrikgebäude (Grundstück 970 m²) und dem Wohnhaus (Grundstück 470 m²).
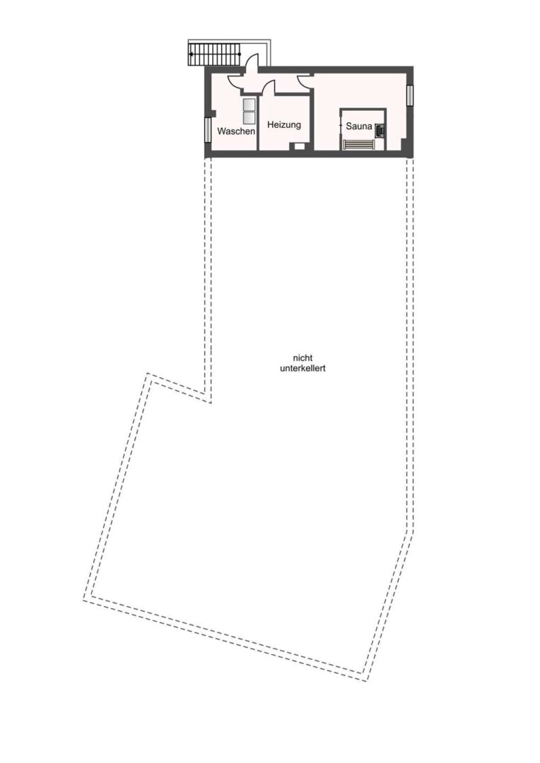
Die sehr gepflegte ehemalige Lederproduktion besitzt drei Etagen und einen großen Dachboden mit einer Gesamtfläche von ca. 1.650 m². Das im Jahr 1930 massiv erbaute Gebäude steht unter Ensembleschutz und befindet sich in einem sehr gepflegten Zustand. Die Deckenhöhen betragen auf jeder Etage mindestens 2,93 Meter. Das Gebäude wird mit einer Ölheizung aus dem Jahr 1994 beheizt und besitzt bereits eine dreiadrig Elektrik. Die Warmwasseraufbereitung läuft zentral mit Kupfer- und verzinkten Leitungen. Die doppelt verglasten Kunststofffenster wurden im Jahr 2001 eingebaut. Auf dem Grundstück befinden sich neben dem Fabrikgebäude ebenfalls noch ein Nebengebäude und ein Pförtnerhaus. Es liegt bereits eine Machbarkeitsstudie vor, welche das Umbaupotenzial dieser Einheit noch einmal unterstreicht.
Das gehobene Wohnhaus verfügt ebenfalls über drei Etagen und eine Wohnfläche von ca. 331 m². Das ehemalige Offiziersheim wurde im Jahr 1436 direkt in die Creußener Stadtmauer gebaut und steht unter Denkmalschutz. Das Haus wurde auf Sandstein erbaut mit gemischten Mauerstärken von 50-100 cm und einer Deckenhöhe der Vollgeschosse von 2,80 m. Im Jahr 1985 wurde eine komplette Kernsanierung des Hauses vorgenommen. Somit sind sämtliche Leitungen und der Innenausbau aus Stand 1985. Die Ölheizung der Lederproduktion versorgt das Wohnhaus und die Warmwasserversorgung läuft ebenfalls zentral mit Leitungen aus Kupfer und verzinkten Rohren. Die zweischaligen doppelt verglasten Holzfenster wurden stets aufbereitet, ein paar wenige müssten aber neu gemacht werden. Die Elektrik ist bereits dreiadrig und besitzt FI-Schalter aus dem Jahr 1985. Unter dem Haus befindet sich noch einen Gewölbekeller. Hier verlaufen auch sämtliche Heizungs- und Wasserleitungen.
Zusammenfassend bietet sich Ihnen hier die einzigartige Gelegenheit, dieses Paket für einen einmaligen Einstiegspreis zu erwerben und das Potenzial mit einer kreativen Idee komplett auszuschöpfen. Die Lage und die Substanz beider Gebäude kann besser nicht sein und eignet sich für verschiedenste Zwecke. So eine Chance gibt es definitiv kein zweites Mal.
Alles, was Sie jetzt noch tun müssen, ist uns eine kurze Nachricht auf dem Portal zu senden. Per E-Mail können Sie sich dann bequem das Exposé herunterladen. Für eine Besichtigung sind wir von Montag bis Sonntag für Sie verfügbar und überzeugen Sie gerne vor Ort von diesem einmaligen Objekt.










































