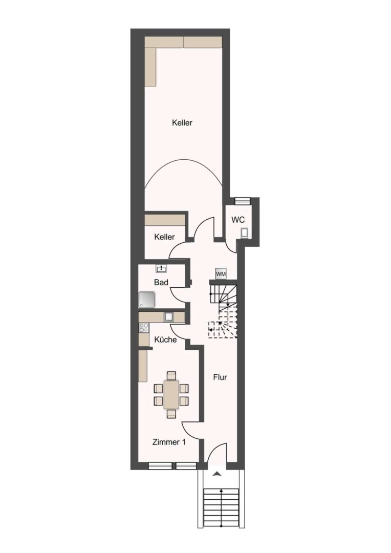
In Kulmbachs zentralster Lage direkt am Marktplatz erwartet Sie dieses einmalige Denkmalschutz Objekt mit einer Wohnfläche von 211,43m² und 7 einzeln vermietbaren Zimmern. Das Haus befindet sich dank einer umfassenden Teilsanierung in einem sehr gut gepflegten Zustand und bietet ein absolutes Renditenpotential.
Für einen Highlightpreis von nur 379.000€ erhalten Sie hier ein top gepflegtes und denkmalgeschütztes Investitionsobjekt in zentralster Innenstadtlage, welches Sie so nicht wieder finden werden.
Aktuell vermietet an Studenten und Auszubildende bietet dieses Haus mit einer pauschalen Warmmiete von 2.590€ (Kaltmiete von ca. 1.890€) pro Monat eine lukrative Einnahmequelle. Dank zentralster Lage in der aufstrebenden Studentenstadt Kulmbach und Einzelvermietung der Zimmer genießen Sie eine enorme Nachfrage und müssen Sie sich um Leerstand keinerlei Gedanken machen.
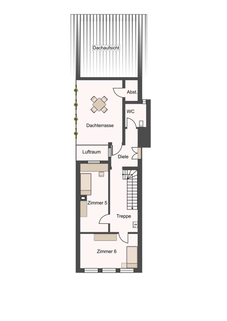
Das 1531 erbaute Reihenmittelhaus erhielt 2022 eine umfassende Teilsanierung und wurde somit optimal für eine stressfreie Kapitalanlage vorbereitet. Eine detaillierte Renovierungsaufstellung finden Sie in der Ausstattungsbeschreibung. Dank der schallgeschützten Fenster aus 2007 genießen Ihre Mieter eine idyllische Ruhe direkt in der Innenstadt. Für einen angenehmen Alltag sorgen Gemeinschaftsräume mit je einer Küche und Essbereich auf zwei Etagen. Das gesamte Haus verfügt über zwei vollwertige Badezimmer mit Dusche und Wanne und zusätzlichen WC`s auf jeder Etage. Für gemütliche Abendstunden sorgen ein Balkon direkt im Anschluss der Küche und eine ca. 20m² große Dachterrasse mit Blick in den Hinterhof.
Das denkmalgeschützte Mehrparteienhaus verfügt über 6 voll möblierte Zimmer und ein Maisonnette-Studio im Dachgeschoss. Aktuell sind alle Einheiten vermietet und erzielen eine monatliche Kaltmiete von ca. 2.100€. Da eine enorm hohe Nachfrage auf die einzelnen Zimmer herrscht, kann das Haus bei Verkauf voll vermietet übergeben werden. Zukünftig kann die Zimmermiete durch die Universität in Kulmbach auch noch erhöht werden.
Zusammenfassend bietet sich Ihnen hier eine einzigartige Möglichkeit auf eine profitable Kapitalanlage in zentralster Lage der Stadt Kulmbach. Um Ihnen maximale Flexibilität zu bieten, können Sie bei Kauf entscheiden, ob das Haus voll vermietet oder leer übergeben werden soll. Dank hochwertiger Renovierungen, müssen Sie die nächsten Jahrzehnte keinerlei Rücklagen für Renovierungen ansparen und können eine lukrative Rendite erzielen.
Alles, was Sie jetzt noch tun müssen, ist uns eine kurze Nachricht auf dem Portal zu senden. Per E-Mail können Sie sich dann bequem das Exposé herunterladen. Für eine Besichtigung sind wir von Montag bis Sonntag für Sie verfügbar und überzeugen Sie gerne vor Ort von diesem einmaligen Objekt.































