Dieses beeindruckende Mehrfamilienhaus mit Gewerbefläche direkt in der hoch frequentierten Fußgängerzone der Universitätsstadt Bayreuth bietet eine einmalige Gelegenheit für Investoren und Kapitalanleger. Die Immobilie besticht durch ihre privilegierte Lage direkt in der Maximilianstraße, die eine hohe Kundenfrequenz und exzellente Sichtbarkeit gewährleistet. Ein solventer Mieter im Erdgeschoss mit einem langfristigen Staffelmietvertrag sichert stabile Erträge, während die Obergeschosse ein enormes Entwicklungspotenzial für weitere Gewerbe- oder Wohnnutzung bieten. Dank des Denkmalschutzes eröffnen sich zudem attraktive Abschreibungsmöglichkeiten, die diese Immobilie zu einer besonders lohnenden Investition machen.
Das historische Gebäude aus dem Jahr 1716 erstreckt sich über vier Etagen mit einer beeindruckenden Gesamtfläche von 732m² auf einem Grundstück von 291m². Das Haus verfügt über ein teilunterkellertes Fundament mit trockenem, massivem Keller, der ideal für Technik und Installationen geeignet ist. Das Erdgeschoss ist direkt über die Fußgängerzone erreichbar, während das zentrale Treppenhaus Zugang zu den oberen Etagen ermöglicht. Im Außenbereich vervollständigt die historische Lage direkt gegenüber des Bayreuther Ehrenhofes das überzeugende Erscheinungsbild.
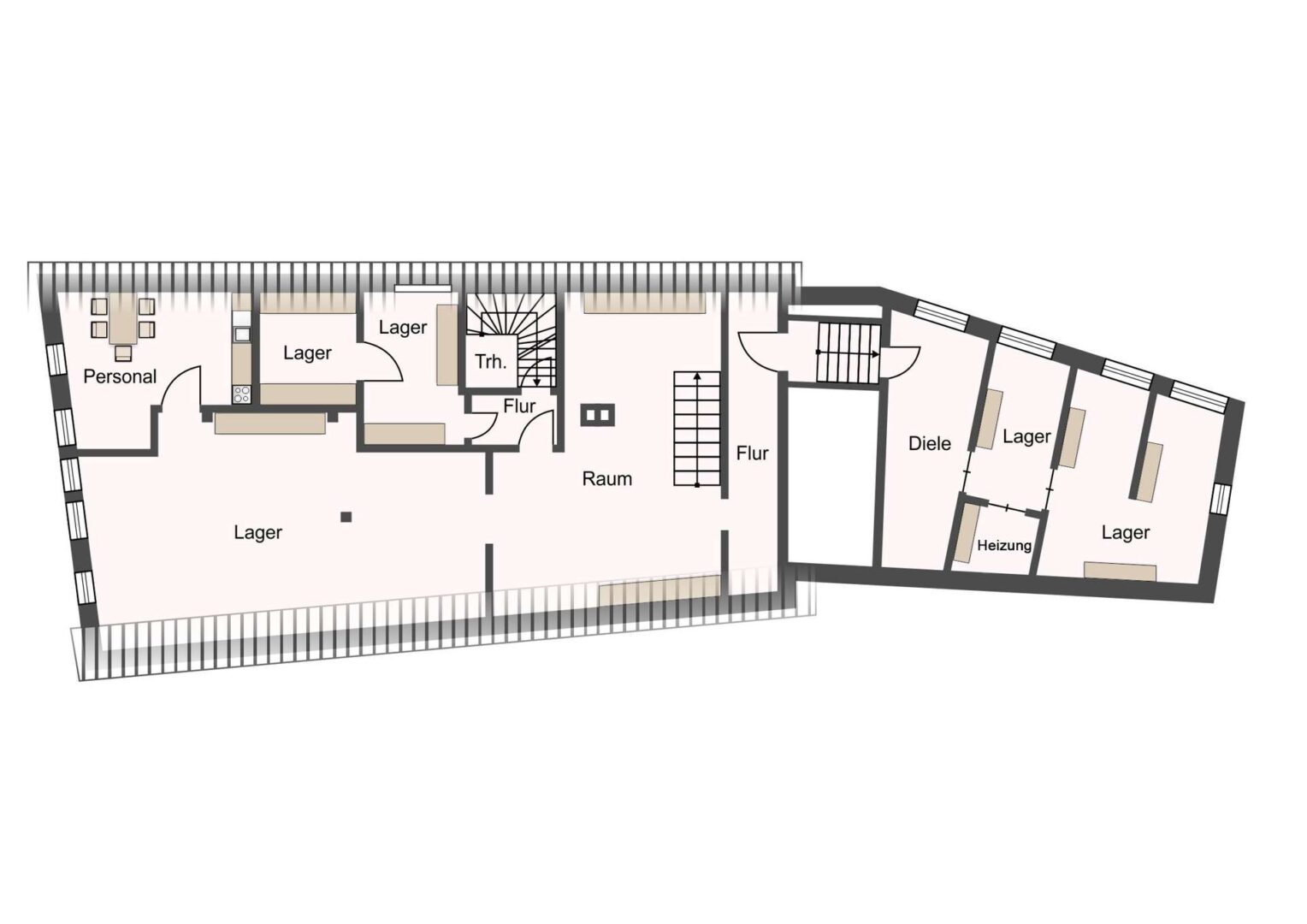
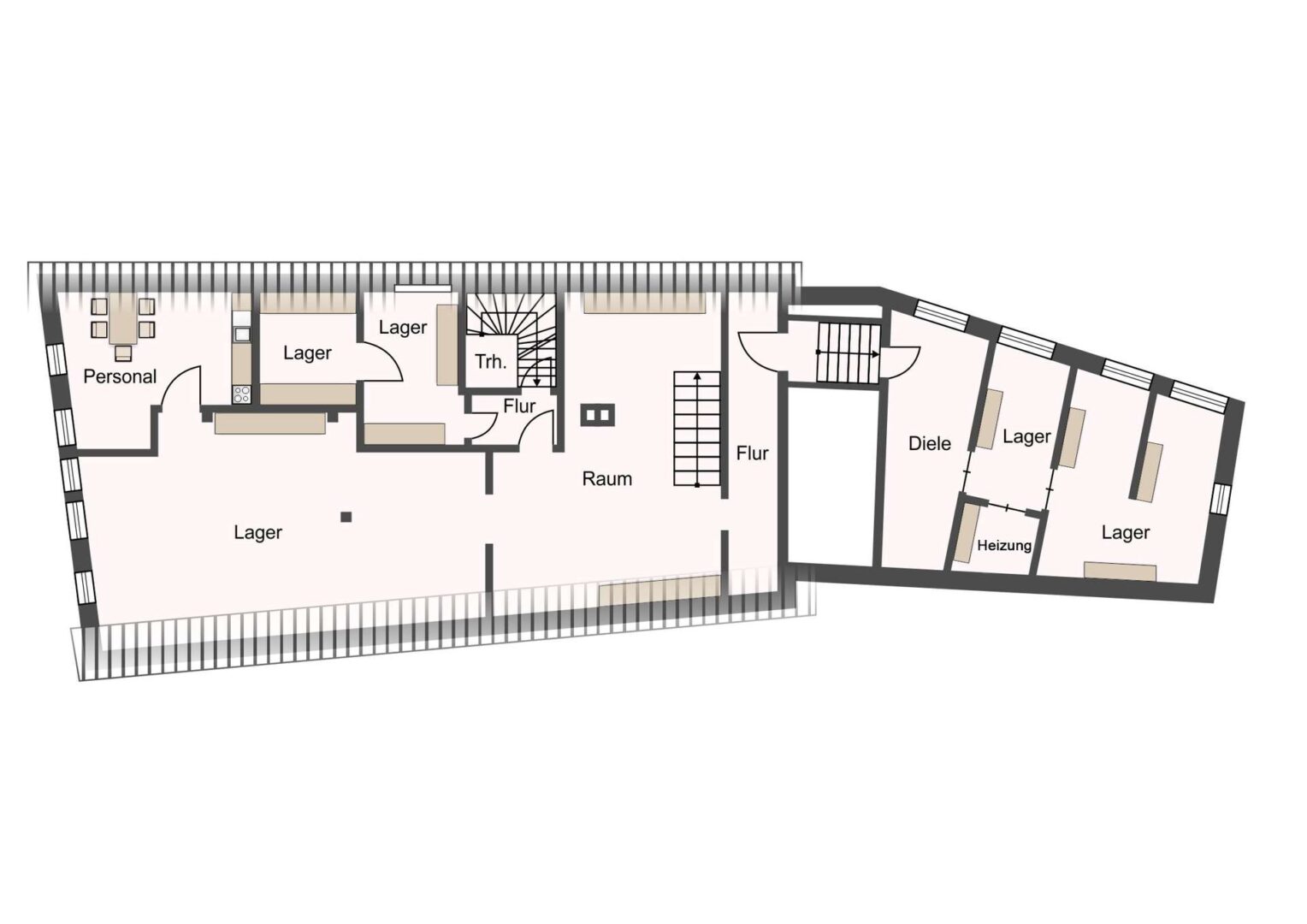
Im Erdgeschoss befindet sich eine repräsentative 225m² Gewerbefläche in absoluter Prestigelage. Die gesamte Einheit wurde im Jahr 2021 umfangreich saniert und ist an einen solventen, langjährigen Mieter vermietet. Das erste Obergeschoss bietet eine weitere, derzeit leerstehende Gewerbefläche mit einer Gesamtgröße von 261m², die sich ideal für neue Nutzungen eignet. Im zweiten Obergeschoss stehen aktuell 180m² Lagerfläche zur Verfügung, die für Umbauten und eine neue Nutzung prädestiniert ist. Das Dachgeschoss ist ebenfalls leerstehend und umfasst weitere 67m² Lagerfläche. Bei der Ermittlung der Lagerflächen wurden die Dachschrägen bereits berücksichtigt. Diese klare Gliederung eröffnet flexible Optionen für eine Umgestaltung oder Umnutzung der oberen Etagen. Vorstellbar ist eine Kombination aus Wohnungen und Büros, die sich perfekt in die derzeitigen Schnitte der Etagen integrieren lassen.
Das geschichtsträchtige Haus wurde in traditioneller Ziegelbauweise errichtet und über die Jahre sorgfältig gepflegt und modernisiert. Neben der Abdichtung des Flachdachs im Jahr 2014 wurden auch die Fenster erneuert. Die energetische Effizienz wird durch die Dämmung des Dachs und der Geschossdecke im 1. Obergeschoss zusätzlich gesteigert. Die im Jahr 2021 vollständig sanierte Gewerbeeinheit im Erdgeschoss verfügt über eine autarke Gastherme aus 2021, während die oberen Etagen durch eine Gaszentralheizung erschlossen sind.
Mit ihrer herausragenden Lage, dem sicheren Mietertrag und dem erheblichen Entwicklungspotenzial ist diese Immobilie eine seltene Gelegenheit in der Bayreuther Innenstadt. Die solide Bausubstanz, verbunden mit den Vorteilen des Denkmalschutzes, macht sie zu einer attraktiven Wahl für Investoren, die auf langfristige Wertsteigerung und steuerliche Vorteile setzen. Gerne stehen wir Ihnen für weitere Informationen oder eine Besichtigung zur Verfügung, um Ihnen die vielseitigen Möglichkeiten dieser Immobilie im Detail aufzuzeigen.































