Wer naturnahes Wohnen mit viel Platz und vielseitigen Nutzungsmöglichkeiten verbinden möchte, findet hier ein außergewöhnliches Zuhause: Dieses großzügige Zweifamilienhaus mit Werkstatt liegt idyllisch und ruhig im Gemeindeteil Seidwitz bei Creußen – und ist sofort bezugsfertig. Zwei Wohneinheiten sind sofort nutzbar, eine weitere lässt sich bei Bedarf ausbauen. Die sehr gute Bausubstanz, eine große Doppelgarage, zahlreiche Stellplätze und die angeschlossene Werkstatt eröffnen ideale Bedingungen für Familien, Selbstständige oder Handwerksbetriebe, die Wohnen und Arbeiten kombinieren möchten.
Das Haus erstreckt sich über drei Etagen und bietet insgesamt 243,55m² Wohnfläche. Zwei separate Wohneinheiten sind bereits fertiggestellt, eine dritte kann im Nebenhaus realisiert werden. Das 1.095m² große Grundstück vereint großzügige gepflasterte Flächen vor dem Haus mit einem schön angelegten Garten auf zwei Ebenen im rückwärtigen Bereich. Eine Doppelgarage mit elektrischen Toren (Zapf, Baujahr 2001) ergänzt das Raumangebot, dazu stehen vor der Garage und dem Haus zahlreiche Stellplätze zur Verfügung. Das Haupthaus wurde 1981 bis zum Erdgeschoss abgetragen und vollständig neu aufgebaut sowie aufgestockt – samt geänderter Firstrichtung zur optimalen Integration ins Ortsbild.
Die solide Ziegelbauweise mit 36cm starken Außenwänden, Wärmedämmmörtel und Betondecken sorgt für Langlebigkeit und gute Energieeffizienz. Die Dacheindeckung mit Ziegeln stammt ebenfalls aus dem Jahr 1981, die oberste Geschossdecke ist gedämmt. Die Holzfenster sind doppelt verglast. Im Haupthaus wurde die Elektrik 1983 erneuert, zwei separate Stromzähler sorgen für Unabhängigkeit beider Wohnungen. Die Öl-Zentralheizung mit zentraler Warmwasseraufbereitung stammt aus 1989 und befindet sich in gutem Zustand. Das Haupthaus ist insgesamt sehr gepflegt, lediglich der Keller weist durch das historische Sandsteinmauerwerk Feuchtigkeit auf. Das Nebenhaus bietet Renovierungspotential, insbesondere im oberen Bereich.
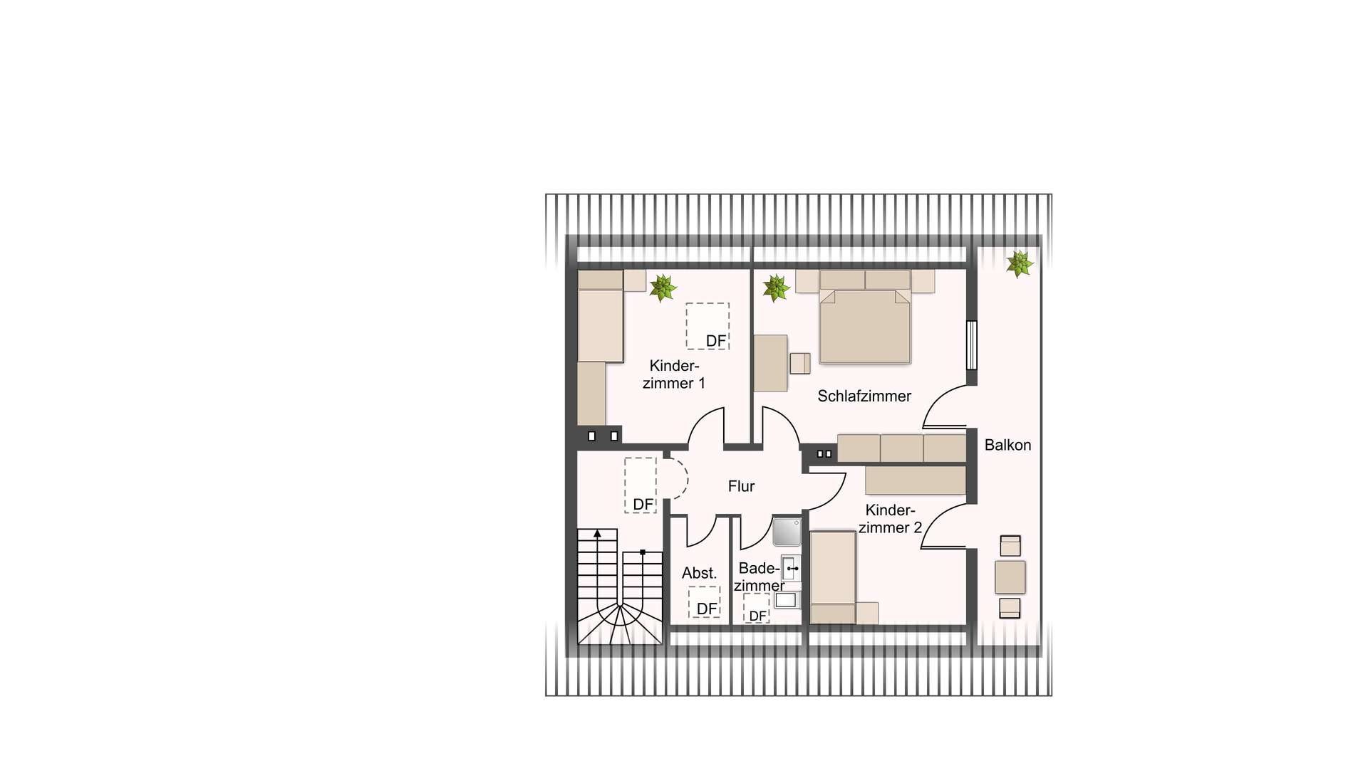
Im Erdgeschoss des Haupthauses erwartet Sie eine 2-Zimmer-Wohnung mit 79,30m². Der offene Wohn- und Essbereich mit 45,56 m² beeindruckt durch große Fensterfronten, Zugang zur Terrasse und eine gemütliche Sichtholzdecke. Die Küche ist großzügig geschnitten, das Badezimmer gepflegt, das Schlafzimmer mit 17,16m² bietet viel Raum zur Entfaltung. Die obere Wohneinheit mit 164,25m² verteilt sich über zwei Etagen und verbindet Großzügigkeit mit viel Komfort. Ein heller Wohnbereich mit Kamin und Zugang zum überdachten Westbalkon, eine große Küche mit direktem Balkonzugang, ein Schlafzimmer und ein geräumiges Bad bilden das Obergeschoss. Im Dachgeschoss ergänzen drei Schlafzimmer – zwei davon mit Balkonzugang – sowie ein weiteres Badezimmer das Raumangebot. Der Dachboden ist über das zentrale Treppenhaus zugänglich und bietet zusätzliche Ausbaureserve. Im Nebenhaus befindet sich im Erdgeschoss eine geräumige Werkstatt, darüber eine ausbaufähige Einheit, die sich hervorragend als potenzielle dritte Wohnung oder für weitere Nutzungsmöglichkeiten eignet.
Ein gepflegtes, sofort beziehbares Zuhause mit beeindruckender Substanz, großzügigem Platzangebot und vielseitigen Möglichkeiten: Ob als Mehrgenerationenhaus, Wohnen mit Büro oder Handwerksbetrieb – hier finden Sie Flexibilität, Wohnqualität und Potenzial in naturnaher Lage mit guter Anbindung. Überzeugen Sie sich selbst von den vielen Vorteilen dieses Angebots und vereinbaren Sie gerne einen Besichtigungstermin.


































