Exklusive Architektenvilla mit Parkgrundstück, Poolanlage & Panoramablick – Wohnen & Arbeiten auf höchstem Niveau
Dieses außergewöhnliche Anwesen vereint anspruchsvolle Architektur, luxuriösen Wohnkomfort und eine einzigartige Lage in Neunkirchen am Brand. Am Ende einer ruhigen Sackgasse, direkt am Naturschutzgebiet, eröffnet sich ein unverbaubarer Blick auf den Hetzleser Berg – das Tor zur Fränkischen Schweiz. Absolute Privatsphäre, Ruhe und ein Höchstmaß an Lebensqualität treffen hier auf architektonische Meisterschaft.
Die von Architekt Bruno Rehm entworfene Villa beeindruckt mit klarer Formsprache, großzügiger Raumaufteilung und hochwertigen Materialien. Die exquisite Gartenanlage – gestaltet von einer renommierten Landschaftsarchitektin – gleicht einem privaten Park mit altem Obstbaumbestand, Buchsbaumskulpturen und blühenden Pflanzinseln in Rosé- und Fliedertönen. Zahlreiche Terrassen bieten Rückzugsorte zu jeder Tageszeit. Es liegt bereits eine Anfrage von Neunkirchen vor, dass die Villa wegen Ihrer besonderen Architektur in das Denkmalschutzverzeichnis aufgenommen wird. Dies hätte steuerliche Vorteile für den Käufer im Zuge der Renovierung. Die Entscheidung darüber wird dem Käufer überlassen.
Auf dem ca. 4.247,30m² großen Grundstück wurde dieses Ensemble für Wohnen und Arbeiten entworfen. Das Hauptgebäude bietet 357,83m² Wohnfläche, ergänzt durch eine Einliegerwohnung (153,71m²) und einen separaten Bürotrakt (132,22m²) – jeweils mit eigenem Zugang und flexibler Nutzung. Die luxuriöse Poolanlage mit Gegenstromanlage, elektrischer Glasabdeckung und Sonnenterrasse ist ein echtes Highlight.
Zwei Doppelgaragen – eine mit Nebenraum und direktem Hauszugang – sowie ein elektrisches Stahltor garantieren Komfort und Sicherheit. Die massive Bauweise mit 30cm starkem Bimsblockmauerwerk, Betonmassivdecken und einem 2000 erneuerten Titanzinkdach erfüllt höchste Qualitätsansprüche. Holzfenster mit Isolierverglasung befinden sich in exzellentem Zustand. Die Öl-Zentralheizung (1990) wird durch eine solare Warmwasserbereitung ergänzt. Moderne Elektrik mit getrennten Zählern und Glasfaseranschluss (bis 1000Mbit/s) ermöglichen zeitgemäßes Arbeiten und Wohnen. Kontinuierliche Instandhaltung, darunter Dach, Heizung und Modernisierungen in der Einliegerwohnung, sorgen für einen bezugsfertigen Zustand.
Im Haupthaus beeindruckt das Entree mit großer Deckenhöhe und einer stilvollen Stahlwendeltreppe. Der rund 94m² große Wohn- und Essbereich mit bodentiefen Fenstern, geschwungenen Wänden und Marmorkamin schafft ein außergewöhnliches Raumgefühl. Zwei große, miteinander verbundene Terrassen mit Travertinplatten, stilvoller Überdachung und traditionellem Backofen bieten perfekten Raum für gesellige Stunden. Die Küche mit Speisekammer und Hauswirtschaftsraum ist sowohl offen als auch separat nutzbar. Ein Gäste-WC ergänzt das Erdgeschoss.
Im Obergeschoss bildet der Masterbereich mit Schlafzimmer, Ankleide, luxuriösem Bad und Balkon einen exklusiven Rückzugsort. Zwei weitere Schlafzimmer mit Balkonzugang teilen sich ein modernes Bad.
Die separate Einliegerwohnung über zwei Etagen bietet höchsten Wohnkomfort mit lichtdurchflutetem Wohnraum, zwei Balkonen, Kamin, hochwertiger Küche und elegantem Bad.
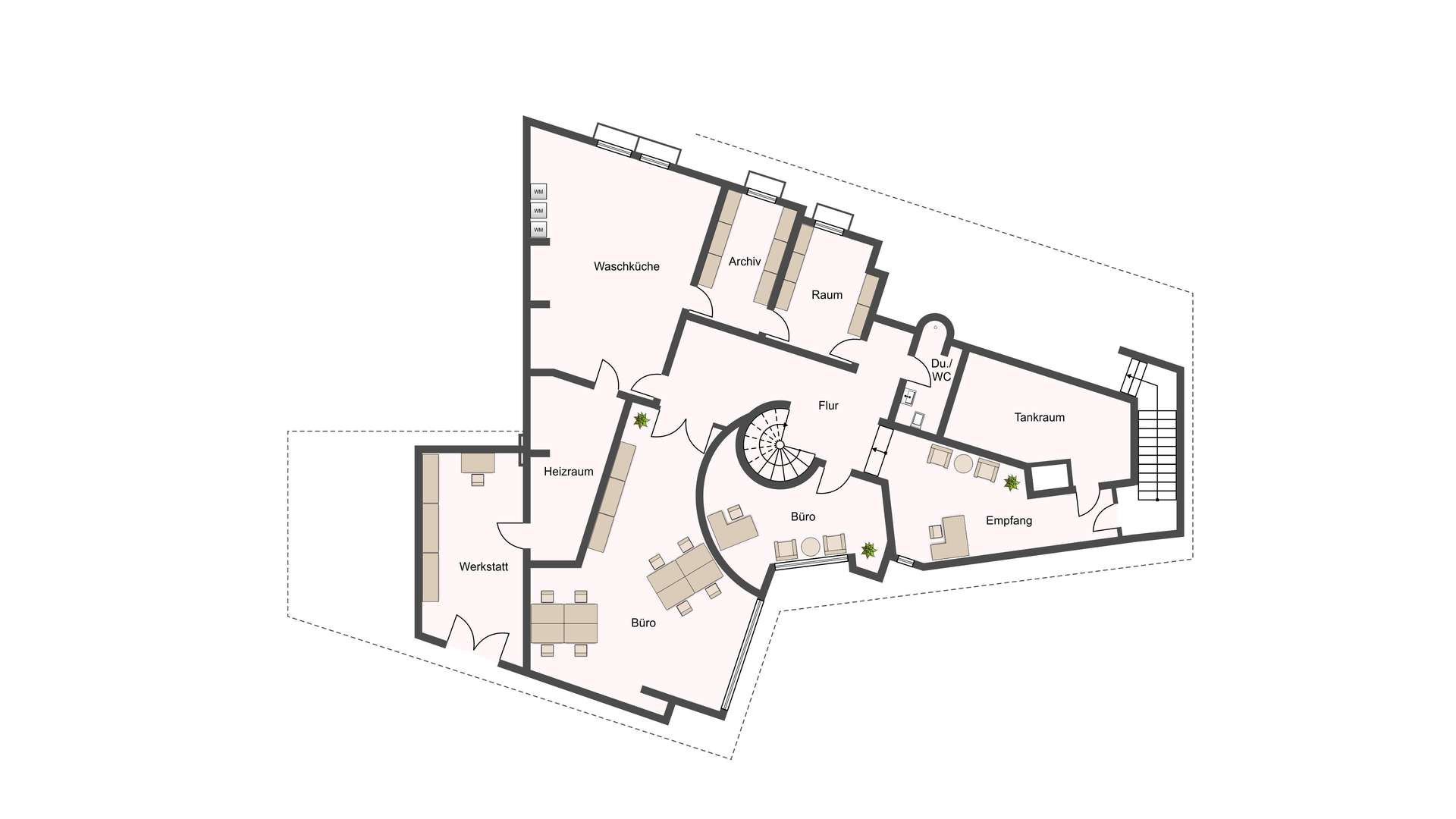
Der separate Bürotrakt mit zwei Räumen (20m² und 50m²) sowie eigenem Empfangsbereich schafft ein professionelles Arbeitsumfeld in exklusiver Atmosphäre.
Das Kellergeschoss bietet zahlreiche Abstell-, Technik- und Haushaltsräume sowie Archivflächen – ideal für vielseitige Nutzung.
Diese außergewöhnliche Architektenvilla vereint stilvolle Privatsphäre, durchdachte Raumlösungen und höchste Wohnqualität auf einem der schönsten Grundstücke der Region. Optional kann ein Teil des Gartens oder die zweite Garage abgeteilt und vom Verkauf ausgenommen werden.
Lassen Sie sich von dieser einmaligen Immobilie begeistern – wir freuen uns auf Ihre Anfrage.






















