In traumhafter Lage am Ende eines ruhigen Wohngebiets in Wirsberg erwartet Sie ein Zuhause, das keine Wünsche offen lässt. Eingebettet in ein liebevoll angelegtes Eckgrundstück genießen Sie absolute Privatsphäre und einen atemberaubenden Ausblick in die Natur. Schon die eindrucksvolle Zufahrt, gesäumt von gepflegten Bepflanzungen, führt zu einem Eingangsbereich, der mit edlen Marmorsäulen einen bleibenden ersten Eindruck hinterlässt. Hier trifft exklusives Design auf modernste Energieeffizienz – dank Erdwärmepumpe, Fußbodenheizung auf allen Etagen und hochwertiger Ausstattung bietet sich Ihnen ein Wohnambiente der Extraklasse.
Der Grundriss umfasst einen großzügigen Hauptwohnbereich und eine Einliegerwohnung auf insgesamt 295 m² Wohnfläche, verteilt auf 3 Ebenen. Das komplett umzäunte Grundstück mit 1.417 m² präsentiert sich in perfektem Pflegezustand und ist liebevoll angelegt – von der prachtvollen Einfahrt bis zur weitläufigen Rasenfläche mit Gartenhaus und hohem Sichtschutz durch eine dichte Hecke. Für Brauchwasser verfügt das Anwesen über eine 10.000 l Zisterne. Eine Doppelgarage mit elektrischem Tor, ein Carport sowie mehrere Stellplätze in der Einfahrt sorgen für reichlich Parkmöglichkeiten. Im Gartenhaus sind Poolanschlüsse vorbereitet, und ein Starkstromanschluss sowie ein Abfluss bieten weitere Nutzungsmöglichkeiten.
Die massive Bauweise mit 36 cm Hochlochziegeln und Betondecken sorgt für außergewöhnliche Stabilität und Energieeffizienz der Klasse A. Das Dach ist mit hochwertigem Naturschiefer gedeckt und verfügt über eine stilvolle Gaube. Die Solaranlage für Warmwasser und die Dämmung mit Zellulose gewährleisten optimale Isolierung und höchste energetische Standards. Fenster mit Doppelverglasung und Rollläden, moderne Elektrik und separat abgesicherte Einheiten in jeder Etage garantieren höchste Wohnqualität und Sicherheit. Eine eigene Entkalkungsanlage schützt die Leitungen langfristig. Das Erdgeschoss mit Einliegerwohnung ist beheizt und dank Drainage um das Haus absolut trocken. Mit Glasfaseranschluss und bis zu 1000 MBit ist auch für schnelle Internetverbindungen gesorgt.
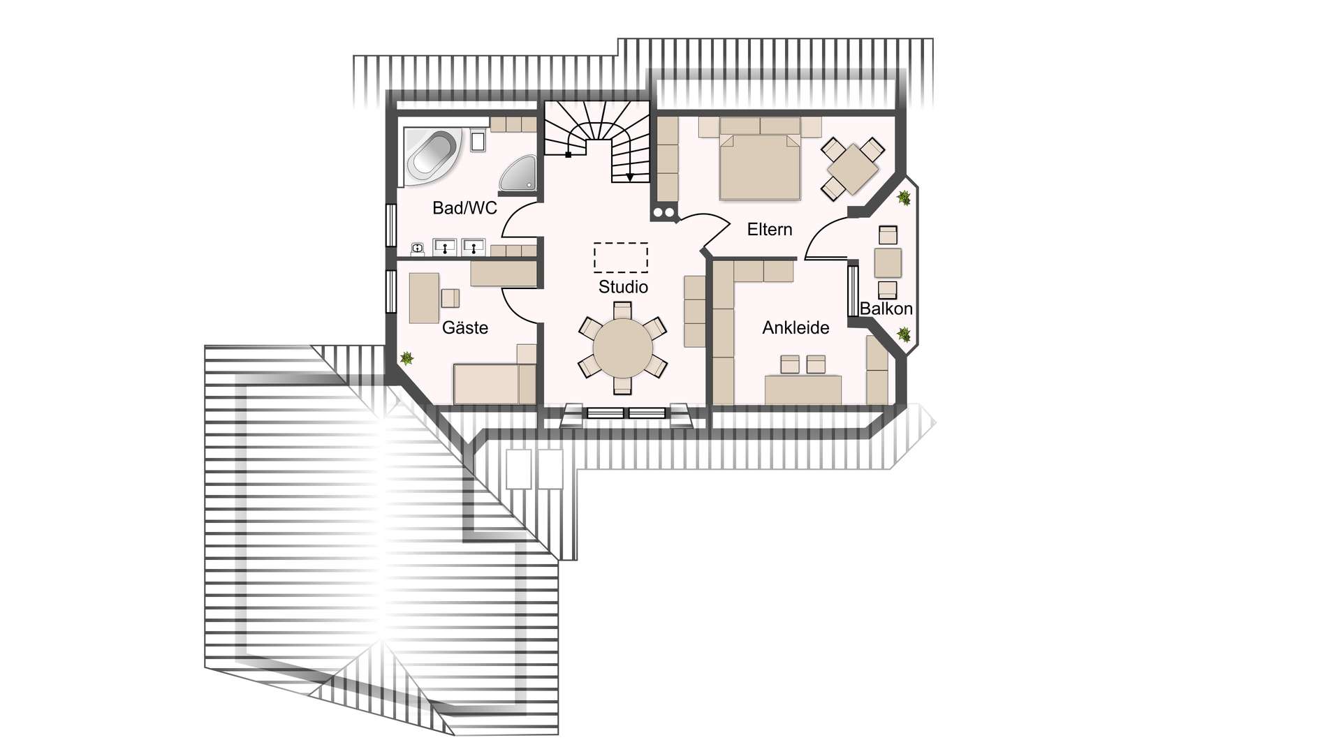
Im Innenbereich erwarten Sie hochwertige Ausstattung und stilvolle Details, die sich wie ein roter Faden durch das Haus ziehen. Schon im Eingangsbereich sorgen Marmorsäulen und ein offenes Treppenhaus für ein repräsentatives Ambiente. Im Erdgeschoss besticht die Einliegerwohnung durch große Fensterfronten, einen lichtdurchfluteten Wohnbereich und eine schöne Terrasse. Über die elegante Marmortreppe gelangen Sie ins Obergeschoss, das durch den offenen Wohn- und Essbereich mit Erker und Kaminofen ein echtes Highlight bietet. Die Küche ist großzügig geschnitten, bietet direkten Zugang zur Sonnenterrasse sowie eine praktische Speisekammer. Der umlaufende Balkon ist eine Oase zu jeder Tageszeit: Morgens frühstücken Sie auf der Terrasse, während der Südbalkon bis in die Abendstunden Sonne bietet. Das Obergeschoss beherbergt außerdem ein separates Büro mit eigenem Zugang zum Garten, eigenem Bad sowie vorbereiteten Anschlüssen für eine kleine Küche. Diese Einheit könnte als weitere Einliegerwohnung genutzt werden, was dem Haus zusätzliche Flexibilität verleiht. Im Dachgeschoss erwartet Sie ein luxuriöser Rückzugsort mit großem Studio, Elternbereich mit Ankleidezimmer und Ostbalkon sowie Hauptbadezimmer mit edlen Marmorfliesen, Regendusche und Badewanne.
Dieses beeindruckende Architektenhaus steht für stilvolles Wohnen auf höchstem Niveau. Die luxuriöse Ausstattung, die Liebe zum Detail und die moderne Technik machen es zu einem einzigartigen Rückzugsort inmitten der Natur. Die traumhafte Lage, die durchdachte Raumaufteilung und die vielseitigen Nutzungsmöglichkeiten schaffen ein Zuhause, das Individualität und Komfort perfekt vereint. Lassen Sie sich dieses besondere Angebot nicht entgehen – vereinbaren Sie noch heute einen Besichtigungstermin!





































