Direkt am ruhigen Ufer des Roten Mains gelegen, bietet dieses moderne Reiheneckhaus einen einzigartigen Mix aus zentraler Innenstadtlage und naturnaher Idylle. Dank der schlüsselfertigen Übergabe sparen Sie sich den gesamten Neubaustress und alle unkalkulierbaren Zusatzkosten – für maximale Planbarkeit und einen sofortigen Einzug. Mit einer energieeffizienten Bauweise, attraktiven KfW-Förderungen und einem durch den Bauträger abgesicherten Garantiepaket profitieren Sie von einer zukunftssicheren Investition. Lichtdurchflutete Räume, eine großzügige Dachterrasse mit Blick auf den Fluss und großzügiger Südbalkon machen dieses Haus zu einem seltenen Angebot – provisionsfrei und sofort bezugsfertig.
Das Reiheneckhaus befindet sich an der linken Seite einer exklusiven Neubau-Reihenhausanlage mit insgesamt vier Einheiten. Die Wohnfläche von 134m² verteilt sich auf drei Etagen und bietet ausreichend Platz für eine Familie oder Paare mit Platzbedarf. Das 252m² große Grundstück ist optimal genutzt und umfasst einen kleinen, pflegeleichten Stadtgarten. Ein Highlight ist die nach Süden ausgerichtete Loggia sowie die großzügige, noch im Bau befindliche Dachterrasse, die einen unverbaubaren Blick auf den Roten Main eröffnet. Für komfortables Parken kann ein Garagenstellplatz direkt unter dem Haus für 25.000€ erworben werden. Aktuell sind drei der vier Reihenhäuser noch zum Kauf verfügbar.
Das Gebäude wurde in massiver und energieeffizienter Bauweise errichtet. Das Erdgeschoss überzeugt mit 36cm starken Porotonziegelwänden, während das 1. und 2. Obergeschoss in einer hochwertigen Holzriegelkonstruktion mit Holzfaserdämmung gefertigt wurde. Die dreifach verglasten Kunststofffenster mit elektrischen Rollläden sorgen für eine hervorragende Wärmedämmung. Eine Luft/Wasser-Wärmepumpe in Kombination mit einer Fußbodenheizung garantiert angenehme Temperaturen in allen Jahreszeiten. Die PV-Anlage auf dem Flachdach mit 6kWp und 6kWh Speicher steigert die Energieeffizienz zusätzlich. Internet mit bis zu 1000MBit/s ermöglicht modernes Wohnen mit optimaler digitaler Anbindung.
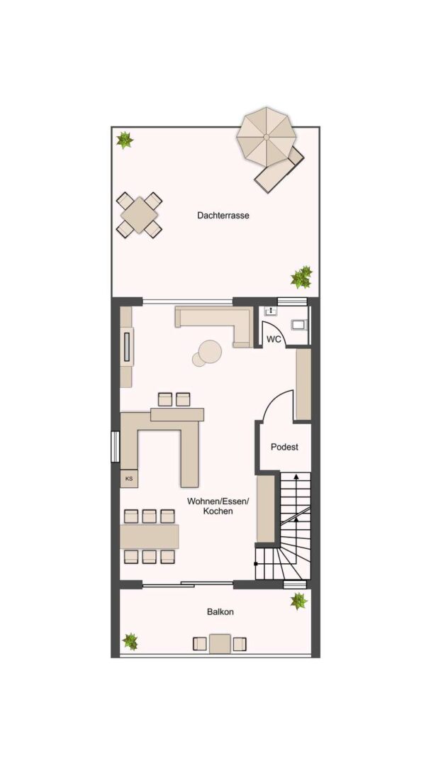
Im Erdgeschoss befindet sich das einladende Entrée mit Platz für eine Garderobe. Ein angrenzender Technikraum bietet Anschlüsse für Waschmaschine und Trockner, während ein 9m² großer Abstellraum zusätzlichen Stauraum schafft. Über eine stilvolle Buchenholztreppe gelangt man ins 1. Obergeschoss, das mit einem offenen Wohn- und Essbereich samt Küche beeindruckt. Große Fensterfronten sorgen für viel Licht und geben den direkten Zugang zum Südbalkon und zur 33m² großen Dachterrasse frei. Die Dachterrasse befindet sich aktuell noch im Bau und wird optisch im gleichen Stil wie der Balkon errichtet. Ein elegantes Gäste-WC mit hochwertigen Fliesen rundet das Stockwerk ab. Im 2. Obergeschoss befinden sich drei gut geschnittene Schlafzimmer, darunter ein 23m² großes Elternschlafzimmer mit Südausrichtung. Zwei Kinderzimmer à 12m² bieten einen traumhaften Blick auf den Roten Main. Das moderne Badezimmer ist mit bodentiefer Regendusche, WC, Waschtisch und einem Tageslichtfenster ausgestattet. Die Wohnräume sind mit hochwertigen Parkettböden ausgestattet, die für ein warmes und elegantes Ambiente sorgen.
Dieses neugebaute Reiheneckhaus vereint exklusives Wohnen mit Nachhaltigkeit und Energieeffizienz. Dank KfW-40-Standard profitieren Sie von attraktiven Förderungen: Bis zu 150.000€ durch KfW 297/298 und für Familien mit berechtigtem Einkommen sogar bis zu 270.000€ durch KfW 300. Einziehen, wohlfühlen und von den Vorteilen eines modernen Niedrigenergiehauses profitieren – vereinbaren Sie noch heute einen Besichtigungstermin und überzeugen Sie sich selbst von diesem einzigartigen Wohnangebot.
