Dieses charmante Reihenmittelhaus bietet eine einzigartige Kombination aus großzügigem Raumangebot und modernem Komfort in einer begehrten, ruhigen Lage von Bayreuth-Laineck. Sofort bezugsfertig und durchgehend modernisiert, ist es ein wahres Raumwunder mit vier Etagen und einem ausbaufähigen Dachgeschoss. Die perfekte Symbiose aus Stadtleben und Rückzugsort – hier genießen Sie Lebensqualität auf höchstem Niveau. Besonders hervorzuheben ist der gepflegte Zustand des Hauses sowie die flexible Gestaltungsmöglichkeit der Räume, ideal für Familien, Kreative oder Menschen mit Platzbedarf.
Das 1977 erbaute Haus erstreckt sich über 136,75m² Wohnfläche und bietet mit seinen drei Wohnetagen und dem ausbaubaren Studio unzählige Nutzungsmöglichkeiten. Voll unterkellert und mit direktem Zugang zum Garten präsentiert sich das Haus besonders praktisch. Das Dachgeschoss mit ca. 42,85m² lässt sich bei Bedarf zu einem zusätzlichen Wohnraum ausbauen. Auf dem 249m² großen Grundstück erwartet Sie ein liebevoll angelegter Garten mit Terrasse und kleinem Gewächshaus – ideal für entspannte Stunden im Freien. Die Garage mit Stromanschluss befindet sich direkt am Eck des Garagenhofs und nur wenige Schritte vom Haus entfernt.
Besonders die solide Bauweise sorgt für langanhaltende Qualität. Außenwände aus 30cm starkem Ziegel und Betondecken garantieren Stabilität und Energieeffizienz. Das Dach ist in sehr gutem Zustand und bereits gedämmt. Moderne Kunststofffenster im Erd- und Obergeschoss (erneuert 1999) sowie eine 2011 modernisierte Zentralheizung runden das Angebot ab. Kupferleitungen für Wasser und Abwasser, Glasfaserinternet mit bis zu 1000Mbit/s und eine sorgfältig gewartete Elektrik machen das Haus auch technisch fit für die Zukunft. Die Mischung aus klassischen und modernen Elementen verleiht diesem Haus seinen besonderen Charme.
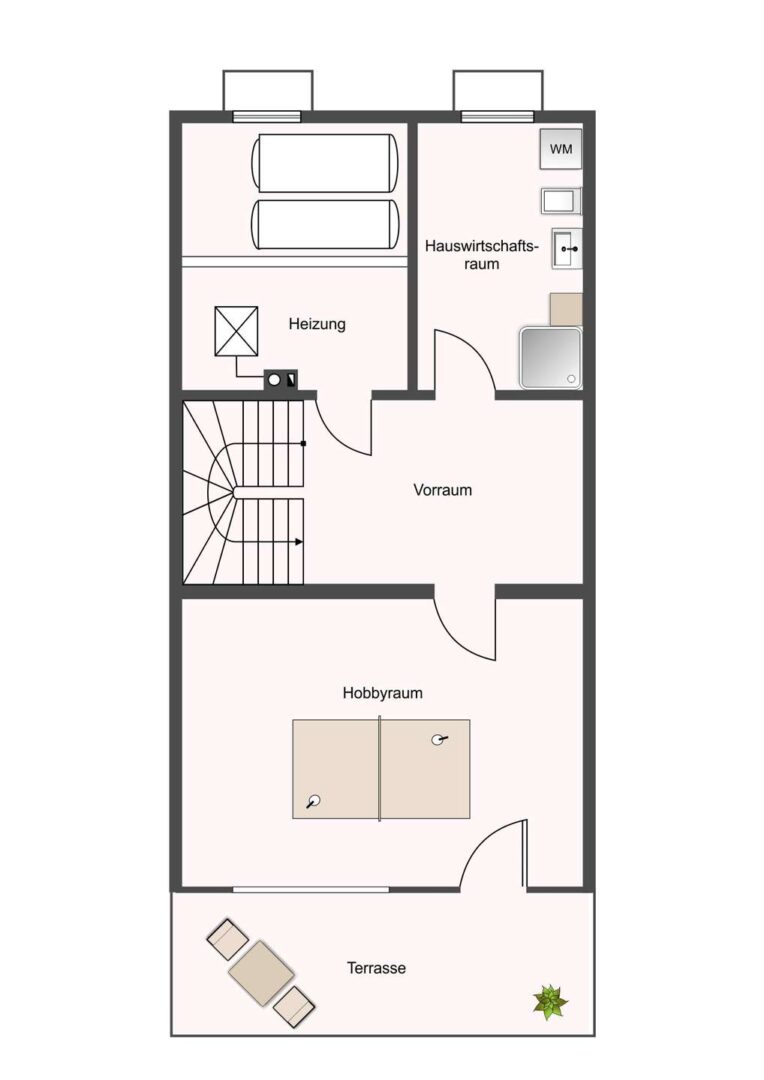
Die Innenräume überzeugen mit durchdachtem Grundriss und großzügiger Raumaufteilung. Im Erdgeschoss empfängt Sie ein heller Windfang mit angrenzendem Gäste-WC und einem praktischen Abstellraum. Die große Küche mit zwei Zugängen lässt Hobbyköche aufblühen, während der offene Wohn- und Essbereich dank seiner großen Fensterfront lichtdurchflutet ist. Von hier aus gelangen Sie auf den Balkon mit Südausrichtung und Blick in den idyllischen Garten. Im Obergeschoss befinden sich drei geräumige Schlafzimmer sowie ein Tageslichtbad mit Dusche und Badewanne. Das Dachgeschoss, bislang als Polsterwerkstatt genutzt, bietet viel Potenzial für ein weiteres Studio oder großzügiges Gästezimmer. Im Keller sorgt ein großer Raum mit Fensterfront und direktem Zugang zur Terrasse für zusätzlichen Wohnkomfort – perfekt als Büro oder Hobbyraum.
Ein Zuhause, das sich mit seinem großzügigen Platzangebot, flexiblen Nutzungsmöglichkeiten und optimaler Lage deutlich von anderen Angeboten abhebt. Die stetigen Modernisierungen und der äußerst gepflegte Zustand machen es zu einer idealen Wahl für alle, die sofort einziehen und sich wohlfühlen möchten. Lassen Sie sich diese Gelegenheit nicht entgehen und vereinbaren Sie noch heute einen Besichtigungstermin, um das volle Potenzial dieses außergewöhnlichen Hauses zu entdecken!
