Inmitten einer ruhigen Sackgasse im Fürther Stadtteil Poppenreuth erwartet Sie dieses großzügige Zuhause mit Einliegerwohnung – perfekt für Familien, die Wert auf Ruhe, optimale Anbindung und eine naturnahe Umgebung legen. Das Haus besticht durch seine sofortige Bezugsfertigkeit, eine ideale Raumaufteilung und einen traumhaften Garten mit absoluter Privatsphäre. Die sehr gute Bausubstanz, kombiniert mit einem gepflegten Zustand und der hervorragenden Lage mit direkter Anbindung an Autobahn und S-Bahn, machen dieses Anwesen zu einem echten Glücksgriff für alle, die entspanntes Wohnen im Grünen mit urbaner Erreichbarkeit verbinden möchten.
Das im Jahr 1979 errichtete Haus verteilt sich auf zwei Etagen sowie einen vollwertigen Keller und bietet auf rund 230m² Wohnfläche aktuell zwei Wohneinheiten, die sich bei Bedarf problemlos zu einer großen Wohneinheit vereinen lassen. Das Grundstück umfasst 702m² – davon ein Miteigentumsanteil von knapp 60m² an der privaten Zufahrt – und ist liebevoll angelegt mit viel Grün, großen Rasenflächen, gewachsenem Baumbestand und charmanten Ecken für Ruhe und Rückzug. Zwei Garagen mit elektrischen Toren und zwei zusätzliche Stellplätze bieten ausreichend Platz für Fahrzeuge. Ein kleiner Hühnerstall ergänzt das Nebengelass und kann bei Bedarf leicht zurückgebaut werden.
Die massive Bauweise mit 30cm Porotonziegeln, Stahlbetondecken und einem gut gedämmten Kehlbalkendach sorgt für Stabilität und Langlebigkeit. Naturholzfenster mit doppelter Isolierverglasung, Kupferleitungen für Frischwasser und ein gepflegter Zustand in allen Bereichen spiegeln die Werthaltigkeit dieser Liegenschaft wider. Ergänzt wird dies durch zahlreiche Modernisierungen wie die Warmwasser-Solaranlage von 2007, die Fensterfront der Einliegerwohnung von 2012, das erneuerte Badezimmer der ELW von 2015 und die Sanierung des Kellers im Jahr 2022. Die Ölzentralheizung stammt aus dem Jahr 1991 und sollte bei Gelegenheit ersetzt werden – die übrige Haustechnik ist funktional und solide.
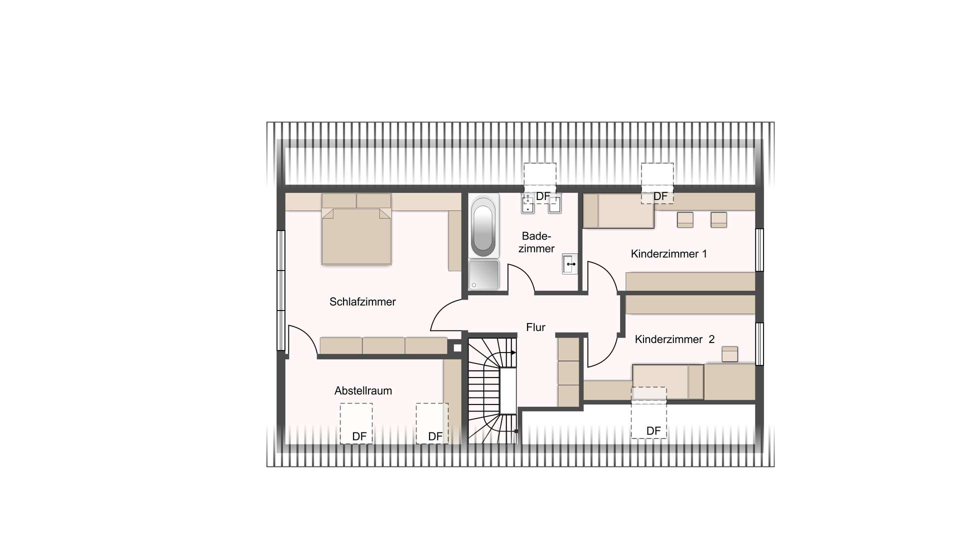
Das Erdgeschoss empfängt Sie über einen rückwärtigen Eingang, der absolute Privatsphäre schafft. Die ca. 57m² große Einliegerwohnung verfügt über eine separate Küche, ein Schlafzimmer sowie ein Wohnzimmer mit herrlichem Ausblick in den Garten und Zugang zur eigenen West-Terrasse. Das renovierte Badezimmer überzeugt mit bodentiefer Regendusche und stilvoller Gestaltung. In der Hauptwohnung gelangt man über den Flur in das großzügige, lichtdurchflutete Wohnzimmer mit Zugang zur sonnigen Südterrasse. Die Küche präsentiert sich in moderner Optik mit neuem Fliesenspiegel, ein separates WC ergänzt das Erdgeschoss. Im Obergeschoss erwarten Sie ein großes Elternschlafzimmer mit Ankleide, zwei helle Kinderzimmer sowie ein komfortables Bad mit Dusche, Badewanne und Bidet. Der großzügige, teilweise sanierte Keller bietet mit einem 29m² großen Hobbyraum, weiteren Abstellräumen und Tageslicht ideale Voraussetzungen für Büro, Fitness oder kreative Hobbys.
Dieses gepflegte Einfamilienhaus mit Einliegerwohnung bietet ein durchdachtes Raumkonzept, viele Nutzungsmöglichkeiten und eine Lage, die Ruhe, Familienfreundlichkeit und hervorragende Erreichbarkeit perfekt vereint. Ob als Mehrgenerationenhaus oder großzügiges Einfamilienhaus – hier finden Sie ein Zuhause mit Charakter und Zukunft. Überzeugen Sie sich selbst bei einer Besichtigung und lassen Sie sich von den Möglichkeiten begeistern.




























