Hier erwartet Sie ein außergewöhnliches Zweifamilienhaus mit drei Wohnetagen, das Wohnkomfort, Energieeffizienz und eine familienfreundliche Lage perfekt vereint. Auf 272,10 m² Wohnfläche eröffnet sich ein hochwertig renoviertes Raumangebot – großzügig und vielseitig nutzbar, ideal für Familien, Mehrgenerationenwohnen oder die Kombination von Wohnen und Arbeiten. Die ruhige Wohnlage mit exzellenter Infrastruktur und schneller Anbindung bietet Idylle und Stadtnähe. Dank neuer Pelletheizung, Photovoltaikanlage und Solartechnik profitieren Sie von niedrigen Energiekosten und einem nachhaltigen Wohnkonzept. Ein Einzug ist nach Absprache ohne Renovierungsaufwand möglich – alles ist vorbereitet.
Das 1976 erbaute Haus umfasst drei vollwertige Wohnetagen sowie ein unterkellertes Sockelgeschoss. Wohnung 1 mit 115,38 m² liegt im Erdgeschoss, Wohnung 2 mit 156,73 m² erstreckt sich über Ober- und Dachgeschoss. Das 551 m² große Grundstück präsentiert sich mit liebevoll angelegten Beeten, formschöner Ligusterhecke und üppiger Bepflanzung als grüne Oase. Eine große Garage mit Abstellraum sowie zwei zusätzliche Stellplätze bieten Platz für Fahrzeuge und Lagermöglichkeiten. Die funktionale Gliederung des Hauses erlaubt vielfältige Nutzungskonzepte und bietet jeder Generation ihren eigenen Rückzugsraum.
Die Bauweise überzeugt durch hochwertige Materialien: massive Beton- und Bimshohlblockwände sowie Stahlbetondecken sorgen für Stabilität und Wärmedämmung. Das bereits ausgebaute Dach erhielt eine Zwischensparrendämmung. Neue Kunststofffenster im Keller (2014) und doppelt verglaste Fenster in den Wohnbereichen (1998) unterstreichen den gepflegten Zustand. Die zentrale Pelletheizung (2014) mit Edelstahlkamin, Warmwasser über Solar sowie die 9 kWp starke PV-Anlage mit Wechselrichter (2023) bieten modernste Energieversorgung. Die Elektrik wurde umfassend erneuert, der Keller 2025 neu verputzt und gestrichen. Internet bis 1000 MBit garantiert beste digitale Infrastruktur.
Wohnung 1 begeistert mit offenem Wohn- und Essbereich (39,74 m²), großen Fensterflächen und Zugang zur Südterrasse mit herrlichem Gartenblick. Im Wohn- und Schlafzimmer sorgen Klimaanlagen für angenehme Temperaturen. Eine Ankleide mit ca. 6 m² ergänzt das Raumangebot. Die hochwertige Hertel-Küche mit Steinarbeitsplatte, Speisekammer und modernen Geräten erfüllt höchste Ansprüche und kann abgelöst werden. Das barrierefreie Bad mit Regendusche, Fußbodenheizung und separatem WC überzeugt durch modernes Design. Milchglastüren, edler Fliesenboden und LED-Spots runden das Ambiente ab.
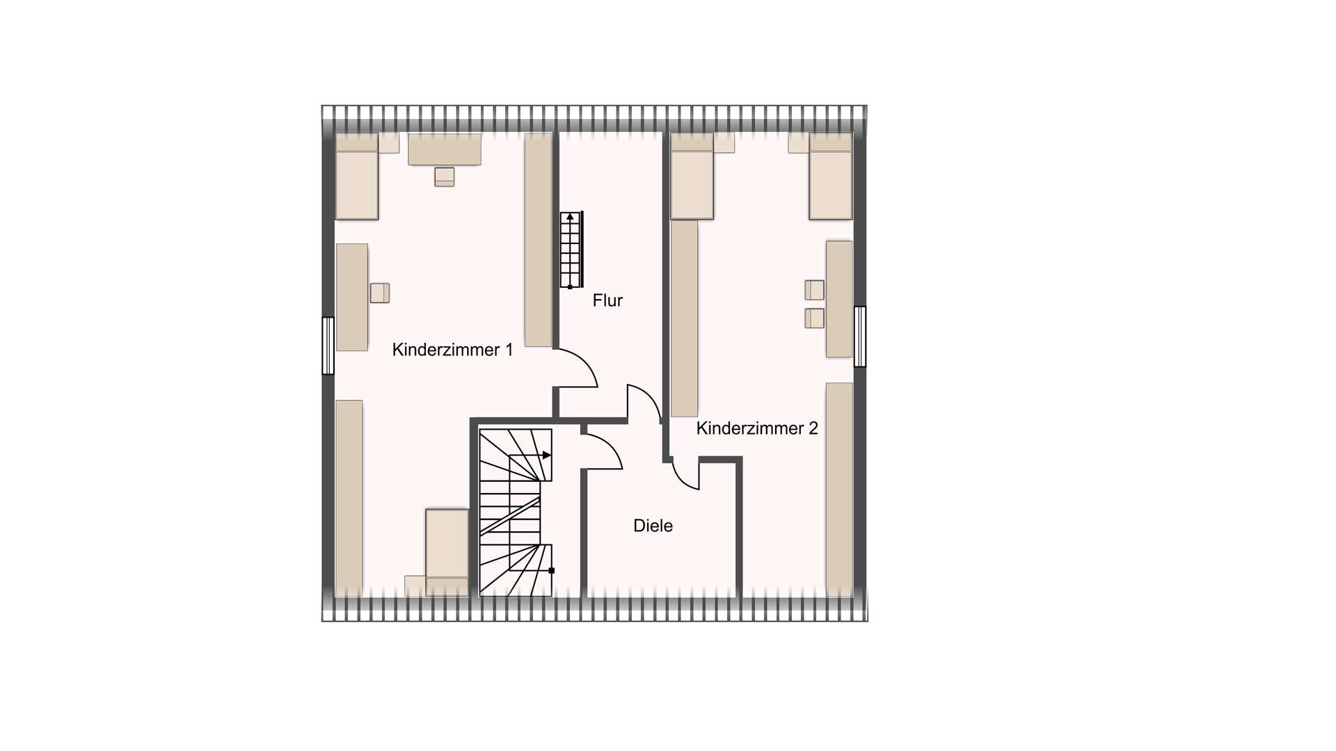
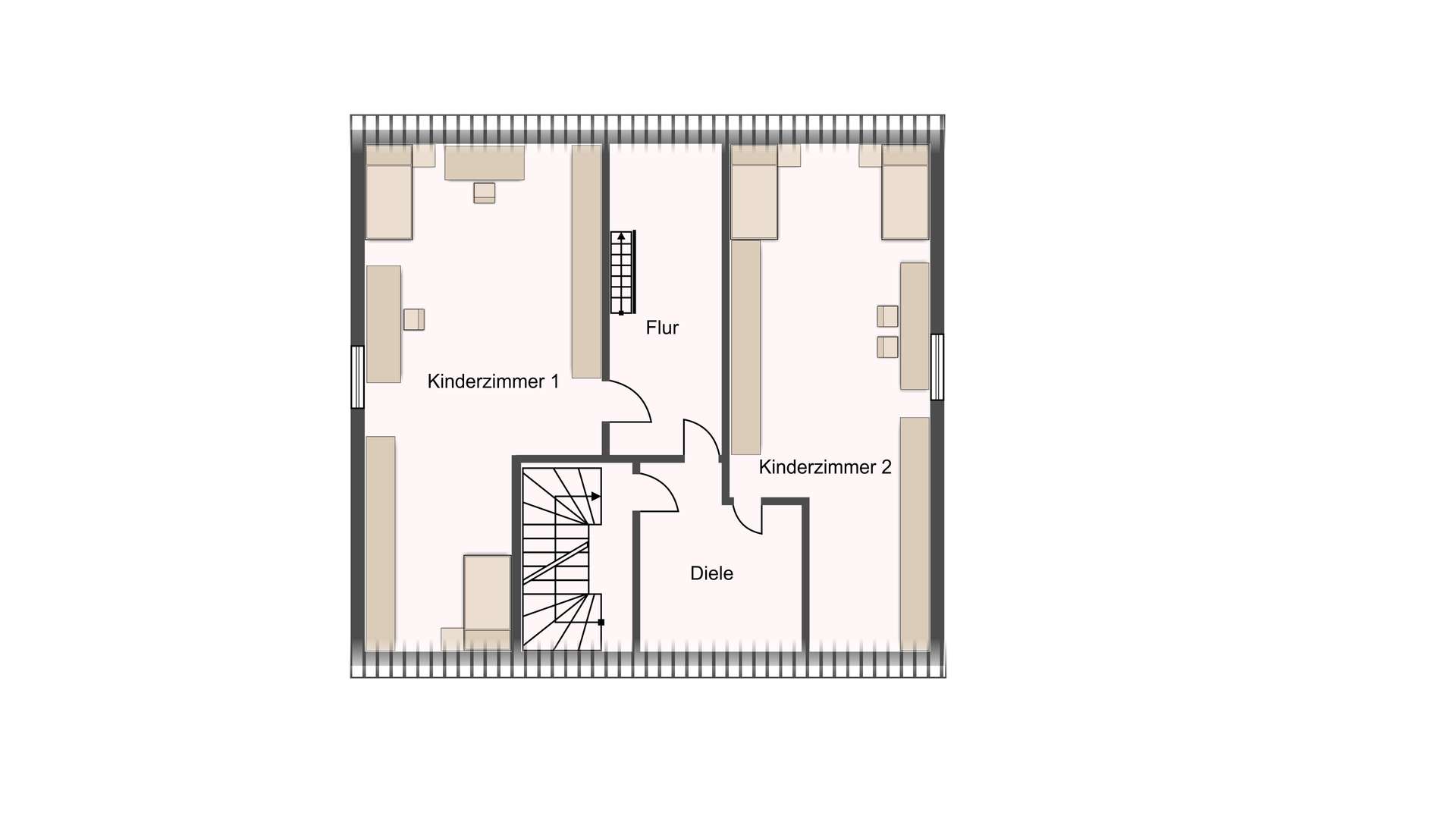
Wohnung 2 im Obergeschoss bietet einen großzügigen Wohn- und Essbereich mit Balkonzugang, Arbeitszimmer und Abstellraum. Auch hier sind im Arbeits- und Wohnbereich Klimaanlagen vorhanden. Die Küche ist mit Granitarbeitsplatte, Speisekammer und neuwertiger Spülmaschine (2023) ausgestattet und kann abgelöst werden. Das Bad mit Eckwanne, bodengleicher Dusche und Fußbodenheizung sowie die Böden wurden 2005 hochwertig modernisiert. Im Dachgeschoss befinden sich zwei zusätzliche Schlafzimmer und ein ausbaufähiger Dachboden.
Der voll unterkellerte Bereich präsentiert sich in bestem Zustand: Ein großer Hobbyraum mit Tageslichtfenster und Heizung, ein Wellnessbereich mit Sauna, Dusche, WC sowie Platz für Waschmaschine und Trockner schaffen zusätzlichen Komfort. Mehrere Abstellräume und ein Weinlager komplettieren das Platzangebot. Die komplette Sanierung des Kellers erfolgte 2025.
Dieses gepflegte Zweifamilienhaus vereint Qualität, Komfort und Energieeffizienz in perfekter Lage. Mit zwei bezugsfertigen Wohneinheiten, hochwertigen Einbauküchen (inkl. im Kaufpreis) und umfassender Ausstattung ist ein sofortiger Einzug ohne Investitionen möglich. Möbelübernahme nach Absprache. Ob für Familien, Mehrgenerationenhaushalte oder zur Teilvermietung – hier finden Sie ein zukunftssicheres Zuhause mit Stil und Substanz. Kontaktieren Sie uns für einen Besichtigungstermin!






















