Wer das Besondere sucht, wird hier fündig: Dieses außergewöhnliche und gepflegte Landhaus vereint ländliche Idylle, höchsten Wohnkomfort und nahezu grenzenlose Nutzungsmöglichkeiten – ideal für Familien, Selbstständige oder Visionäre mit Platzbedarf. Sofort bezugsfertig, bietet es ein liebevoll angelegtes Grundstück, ein stilvolles Haupthaus mit Wintergarten, Sauna und Pool sowie drei eindrucksvolle Nebengebäude. Die ruhige, aber zentrale Lage mit exzellenter Infrastruktur macht dieses Anwesen zu einem einzigartigen Rückzugsort mit perfekter Anbindung.
Das Hauptgebäude erstreckt sich über drei Etagen plus Keller mit insgesamt 266,16m² Wohnfläche. Das 1680m² große Grundstück liegt idyllisch am Waldrand und beherbergt neben einer großzügig gepflasterten Hofeinfahrt eine gepflegte Rasenfläche mit Springbrunnen, dessen Wasser aus einer nahegelegenen Quelle stammt. Ein Pool mit Gegenstromanlage, Flächenkollektoren für Warmwasser und eine Außendusche runden das Außenambiente ab. Zwei Scheunen mit 167m² und 94m² Grundfläche – eine davon mit 3 Etagen, Bühne und Bar ausgestattet – sowie ein weiteres Nebenhaus mit 47m² Grundfläche und 2 Etagen eröffnen vielseitige Nutzungsmöglichkeiten. Zwei Felsenkeller, eine beheizte Großgarage mit Grube, Starkstrom und Druckluftanschluss, eine Doppelgarage mit elektrischen Sektionaltoren und zwei Carports bieten ideale Voraussetzungen für Hobby, Gewerbe oder Sammler.
Die massive Bauweise des Haupthauses mit Sandsteinmauerwerk sorgt für ein angenehmes Raumklima. Die Fenster sind doppelt verglaste Kunststofffenster in sehr gutem Zustand, das Dach wurde 2001 neu eingedeckt und mit einer Zwischensparrendämmung versehen. Beheizt wird die Immobilie über eine zentrale Scheitholzheizung aus 2010 sowie eine Ölheizung aus 1993. Die Elektrik, Wasser- und Abwasserleitungen befinden sich in gutem Zustand. Der Internetanschluss mit 250MBit/s bietet eine leistungsfähige Netzwerkanbindung. Zahlreiche Modernisierungen wie neue Bäder, Fenster, Heizsysteme und der Wintergarten wurde in den vergangenen Jahren kontinuierlich umgesetzt – zuletzt bis 2022 mit kleineren, sorgfältig durchgeführten Verbesserungen.
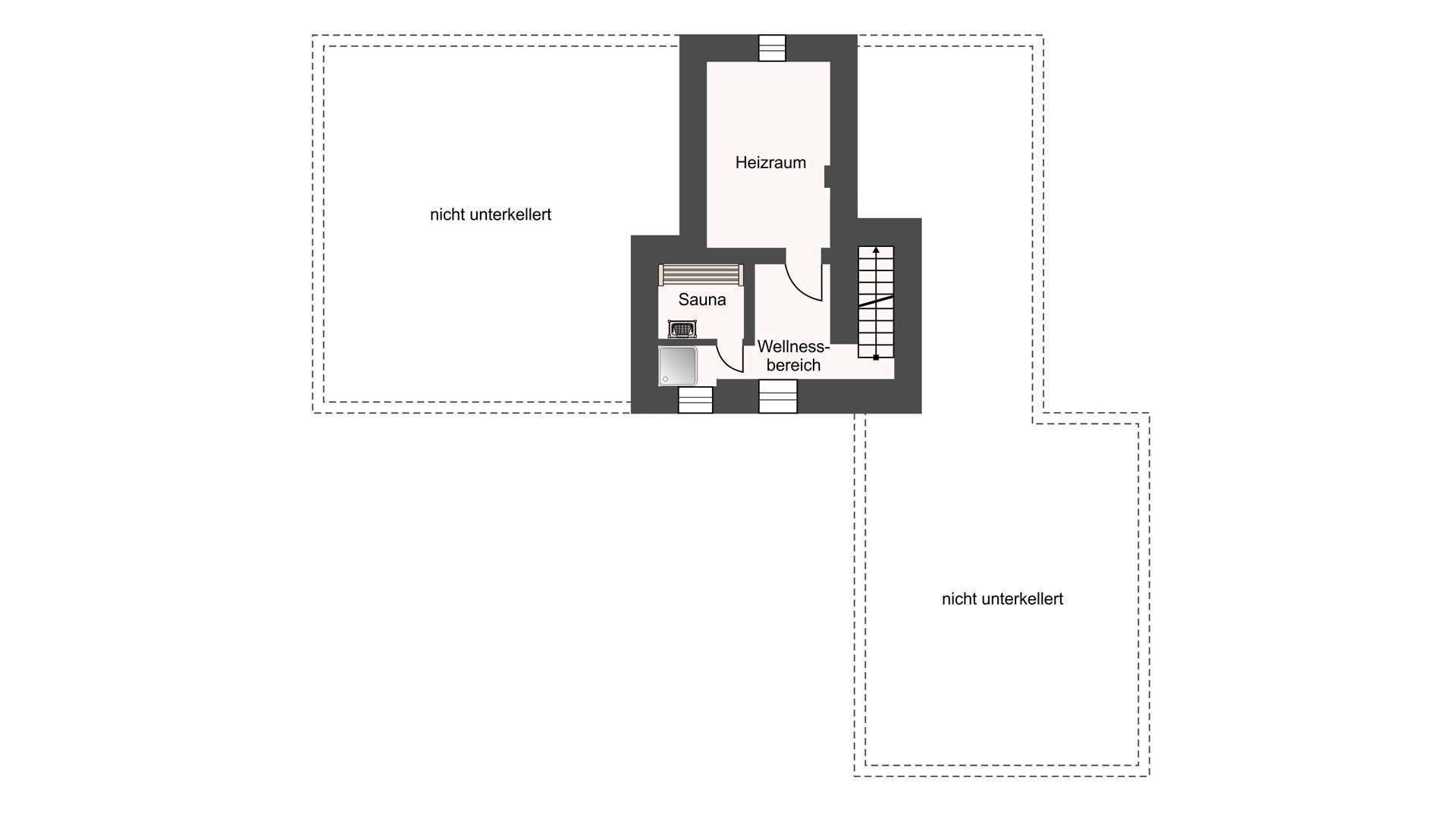
Innen überzeugt das Haus mit einem offenen Wohnkonzept, das sich großzügig über 3 Etagen entfaltet. Im Erdgeschoss empfängt eine große Diele mit Gästezimmer, Wohn- und Essbereich mit Zugang zur Küche, Badezimmer sowie Hauswirtschafts- und Abstellraum mit direktem Zugang zur Werkstatt und in den Keller. Ein rustikaler Torbogen führt in das lichtdurchflutete Wohnzimmer mit dekorativem Ofen und sichtbarer Holzbalkendecke. Die hochwertige Vollholzküche mit modernen Geräten lädt zum Kochen ein. Im Obergeschoss befinden sich fünf helle Zimmer, ein weiteres Bad und der gemütliche Wintergarten mit Kamin – vorbereitet für den direkten Gartenzugang. Der ausbaubare Dachboden bietet zusätzlich 38,83m² Nutzfläche mit Außenzugang. Das Dachgeschoss beherbergt zwei weitere Zimmer mit traumhaftem Ausblick in die Natur und auf die Plassenburg, zwei Abstellräume sowie ein modernes Bad. Ein Wellnessbereich mit Sauna und Dusche im Keller rundet das Raumangebot stilvoll ab.
Dieses Objekt ist mehr als nur ein Haus – es ist ein Lebensraum mit Charakter, Geschichte und Zukunftspotenzial. Ob als großzügiges Familienanwesen, Mehrgenerationenhaus, Atelier oder Wohn- und Arbeitsort in einem: Hier finden Sie Platz für Ihre Ideen. Die hervorragende Substanz, die exzellente Ausstattung, die vielseitig nutzbaren Nebengebäude und die idyllische Lage mit absoluter Ruhe und bester Anbindung machen dieses Angebot zu einer Rarität. Überzeugen Sie sich selbst von den Möglichkeiten und vereinbaren Sie jetzt einen Besichtigungstermin.









































