Ein echtes Unikat trifft moderne Effizienz – dieses stilvoll sanierte Einfamilienhaus in Bamberg bietet die seltene Gelegenheit, historischen Charme mit zeitgemäßer Technik in perfekter Lage zu vereinen. In zweiter Reihe im begehrten Stadtteil Wunderburg gelegen, genießen Sie absolute Ruhe – und sind doch nur wenige Schritte von Gastro, Einkaufsmöglichkeiten, Schule und Kindergärten, Ärzten und dem öffentlichen Nahverkehr entfernt. Das ehemalige Gärtnerhaus wurde 2015 um einen modernen, energetisch herausragenden Anbau erweitert und ist ab dem 01.04.2026 bezugsfertig. Die architektonische Symbiose aus rustikalem Altbau und hochwertigem Neubau verleiht diesem Zuhause einen besonderen Charakter. Komplett modernisiert, ohne Renovierungsstau, mit durchdachten Details und wohltuender Privatsphäre im Garten – ein seltenes Gesamtpaket.
Die Immobilie umfasst 182,16m² Wohnfläche auf zwei Etagen und befindet sich auf einem 285m² großen, wunderschön angelegten Grundstück. Der Anbau in Holzständerbauweise entstand 2015 im Passivhausstandard. Das Haus ist teilunterkellert, bietet einen großzügigen Eingangsbereich mit Flügeltor, der sich ideal als Garage oder Abstellfläche eignet. Zusätzlich sind direkt vor dem Haus öffentliche Stellplätze vorhanden. Der Garten präsentiert sich pflegeleicht, sehr idyllisch und vollkommen uneinsehbar – perfekt für entspannte Stunden auf der großen Terrasse mit hochwertigem Whirlpool und großzügiger Markise.
Das Vorderhaus wurde mit einem Ziegel- und Sandsteinmauerwerk gebaut und hat Biberschwanzziegel mit 12cm Sparrendämmung im Dach. Der moderne Anbau ist mit Zellulosedämmung, Ziegeleindeckung und dreifach verglasten Holz/Alu-Fenstern ausgestattet. Auch energetisch ist das Haus hervorragend aufgestellt: Eine zentrale Gasheizung von 2013 versorgt das gesamte Gebäude, ergänzt durch eine Fußbodenheizung im Anbau und eine zentrale Lüftungsanlage mit Be- und Entlüftung, an die alle Räume angeschlossen sind. Fenster, Elektrik, Wasser- und Heizungsleitungen wurden durchgehend modernisiert. Besonders hervorzuheben sind die kontinuierlichen Sanierungen – darunter der Ausbau des Dachbodens, die Erneuerung beider Bäder, der Küche sowie sämtliche technischen Anlagen. Ein baMbit Breitband sorgt für schnelles Internet, Telefonie und Fernsehen.
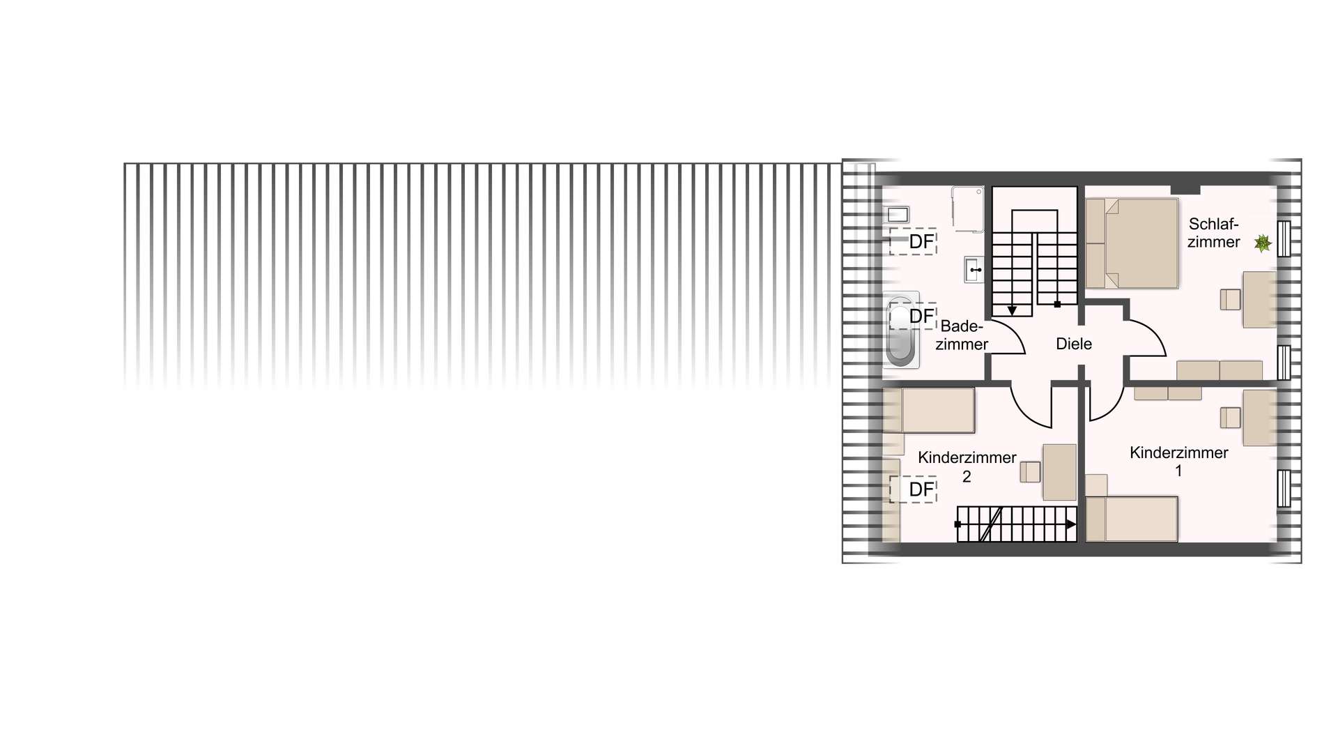
Die Innenräume vereinen modernen Wohnkomfort mit liebevollen Details. Im Erdgeschoss erwartet Sie in der Durchfahrt ein heller Eingangsbereich mit Sichtbetonpodest, ein Arbeitszimmer im Industrial Look, ein modernes Bad (2015) mit Wanne und Lüftungsanlage sowie die offene Küche mit hochwertiger Einbauküche, zentraler Kochinsel und Speisekammer. Die Einbauküche kann für nur 10.000€ übernommen werden. Das Esszimmer mit gemütlicher Holzverkleidung bietet durch die große Schiebetür direkten Zugang zum Garten. Im Wohnzimmer sorgen Eiche-Massivholzböden aus dem Steigerwald, das große Lesefenster und angenehmes Licht für ein wohliges Ambiente. Im Obergeschoss befinden sich zwei helle Kinderzimmer – eines mit Zugang zum ausgebauten Dachboden – ein stilvolles Bad (2018) mit bodengleicher Dusche, eingelassener Wanne und hochwertigen Armaturen sowie ein großzügiges Schlafzimmer mit zwei Gauben. Der offene Sichtdachstuhl, Parkett- und Korkböden sowie Lüftungsanlage in allen Räumen schaffen ein ideales Wohnklima. Im ausgebauten Dachboden rundet ein charmantes Studio mit Holzbalken und viel Licht das Raumangebot ab.
Dieses geschmackvoll modernisierte Gärtnerhaus vereint Architektur mit Energieeffizienz. Der Anbau in Passivhausstandard, Fußbodenheizung, zentrale Lüftungsanlage und ein gepflegter, sofort bezugsbereiter Zustand machen es zu einem außergewöhnlichen Angebot. Die ruhige Lage mit perfekter Infrastruktur sprechen für sich. Ein Haus, das Emotionen weckt – ideal für Menschen, die das Besondere suchen. Kontaktieren Sie uns gern für weitere Informationen oder eine Besichtigung.
