Hier trifft Wohnidylle auf vielseitige Möglichkeiten: Dieses modernisierte Ein-/Zweifamilienhaus vereint Ruhe, Natur und optimale Infrastruktur in perfekter Harmonie. Eingebettet in ein familiäres Wohngebiet am Rand eines Wasserschutzgebiets überzeugt das Anwesen mit seiner absolut unverbaubaren Lage, einem 995m² großen, idyllisch eingewachsenen Grundstück und direktem Blick ins Grüne. Die besondere Kombination aus naturnahem Wohnen, sofortiger Bezugsfertigkeit und flexibler Nutzung – ob als großzügiges Einfamilienhaus oder separate Wohneinheiten – macht dieses Objekt zu einem seltenen Angebot für Familien, Paare oder Mehrgenerationenhaushalte mit Anspruch.
Das nachträglich angebaute Wohnhaus bietet auf zwei Etagen plus voll ausgebautem Keller rund 208,71m² Wohnfläche. Die Immobilie ist vollständig umzäunt und eröffnet durch ihre ruhige Lage mit angrenzender Wiesenlandschaft absolute Privatsphäre. Der weitläufige Garten mit gepflegtem Baumbestand und unverbaubarem Blick lädt zum Entspannen und Genießen ein. Eine Garage mit Carport sowie ein zusätzlicher Stellplatz vor dem Haus bieten ausreichend Platz für Fahrzeuge. Die klare Trennung von Erd- und Obergeschoss erlaubt bei Bedarf eine separate Nutzung – ideal für Familienkonzepte mit mehreren Generationen oder Arbeiten und Wohnen unter einem Dach.
Die solide Bauweise mit Hochlochziegeln, die neu gedeckte Dacheindeckung und doppelt verglaste Fenster aus 2007 sowie teils gut erhaltene Holzfenster – unterstreichen den gepflegten Zustand des Hauses. Die 2002 erneuerte Gas-Zentralheizung mit Niedertemperaturkessel sowie die Fußbodenheizung im Anbau sorgen für angenehme Wärme. Die Elektrik ist im guten Zustand und verfügt über FI-Schutzschalter. Dank nachträglicher Fassadendämmung, moderner Wasser- und Abwasserleitungen sowie eines schnellen DSL-Anschlusses mit bis zu 250MBit ist das Haus technisch auf dem neuesten Stand. Laufende Modernisierungen – unter anderem das Badezimmer im EG und der Anbau – wurden kontinuierlich und mit Blick auf Qualität durchgeführt.
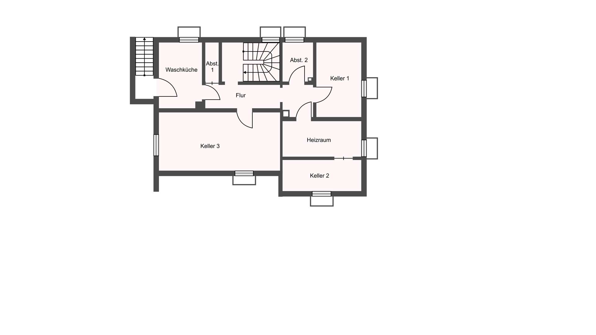
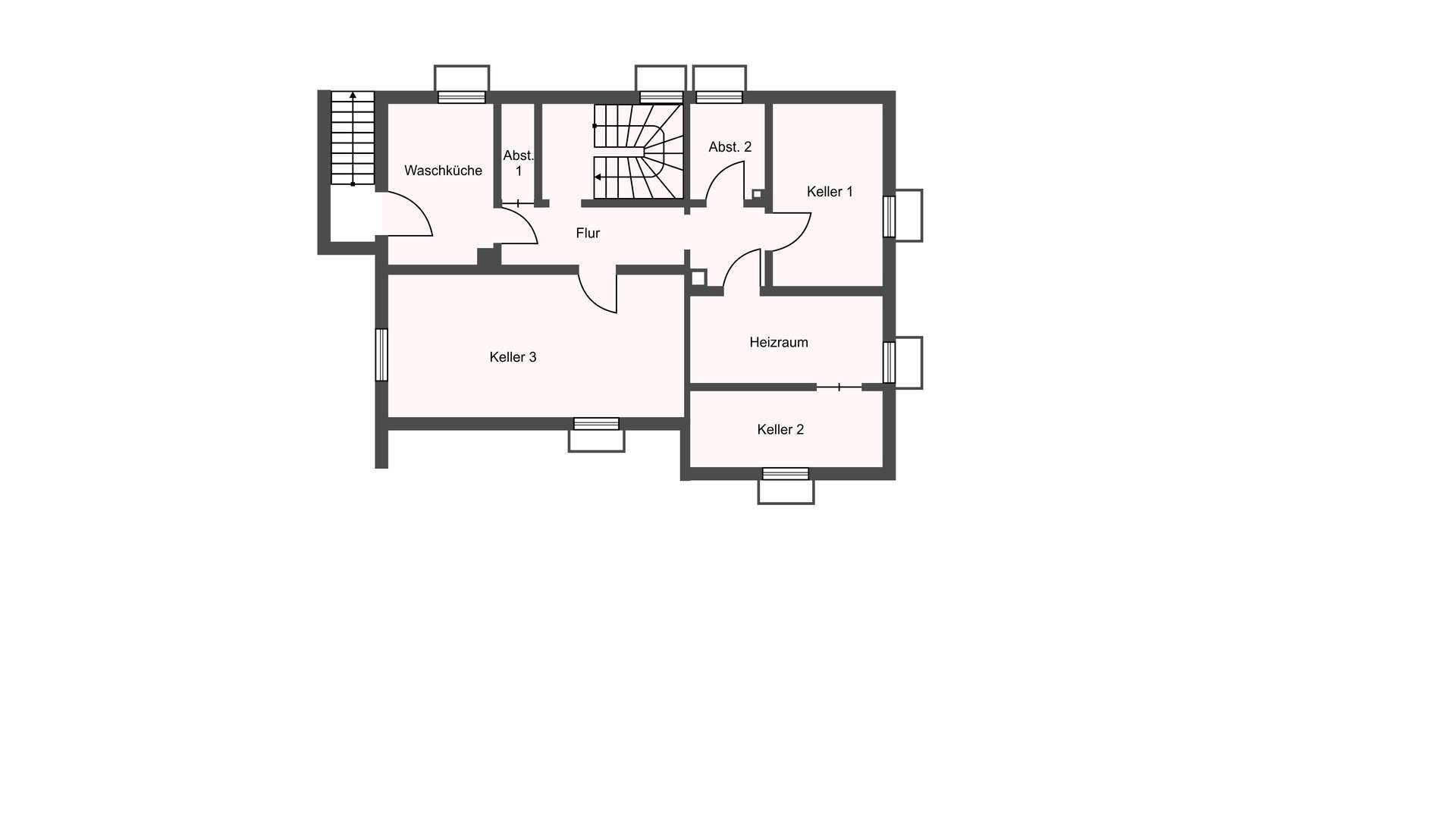
Im Erdgeschoss empfängt ein heller Windfang mit Holztreppe und gefliestem Boden. Ein praktischer Garderobenbereich, ein separates Gäste-WC sowie ein modernes, lichtdurchflutetes Badezimmer mit Dusche, Badewanne und zwei Waschbecken bieten bereits beim Eintreten höchsten Komfort. Das Kinderzimmer mit Zugang nach draußen, ein freundliches Arbeitszimmer sowie ein großzügiger Wohn-/Essbereich mit 49m², Parkettboden, Kaminanschluss und direktem Zugang zur überdachten Terrasse lassen keine Wünsche offen. Die Küche mit Wintergartencharakter und Glasfront eröffnet einen traumhaften Blick in den Garten – ein besonderer Ort zum Kochen und Verweilen. Das Obergeschoss bietet eine eigenständige Wohneinheit mit funktionaler Küche, Wohnzimmer, Schlafzimmer mit Zugang zum Dachgeschoss, einem weiteren Kinderzimmer, Badezimmer sowie einem zusätzlichen Arbeitszimmer. Der ausgebaute Dachboden mit Hobbyraum und sichtbarer Dachkonstruktion schafft ein wohnliches Ambiente mit Charakter. Der Keller bietet neben Waschküche, Heizraum und Lagerräumen vielfältige Nutzungsmöglichkeiten – ob als Werkstatt, Stauraum oder Hobbybereich.
Diese Immobilie überzeugt auf ganzer Linie: sofort bezugsfertig, liebevoll gepflegt, umfassend modernisiert und vielseitig nutzbar. Die ruhige, naturnahe Lage am Rande eines Wasserschutzgebiets mit gleichzeitig hervorragender Anbindung an die A9 und exzellenter Infrastruktur macht sie zu einem seltenen Juwel auf dem Immobilienmarkt. Ob als großzügiges Zuhause für die Familie, als Kombination aus Wohnen und Arbeiten oder als Mehrgenerationenlösung – hier eröffnen sich echte Perspektiven. Vereinbaren Sie jetzt einen Besichtigungstermin und erleben Sie vor Ort, was dieses einzigartige Anwesen zu bieten hat.
