Hier erwartet Sie ein Einfamilienhaus, das keine Wünsche offenlässt: hochwertig, energieeffizient und bereit für moderne Wohnansprüche. In ruhiger und familienfreundlicher Lage bietet dieses durchdachte Zuhause nicht nur Privatsphäre und Komfort, sondern auch die Möglichkeit zur gewerblichen Nutzung dank offizieller Genehmigung im Mischgebiet. Mit großzügigen 208,33m² Wohnfläche, einem 904m² großen Grundstück und einem umfassenden Smart-Home- und Sicherheitskonzept ist dieses Objekt ideal für Familien mit Anspruch, Selbstständige oder alle, die Wohnen und Arbeiten unter einem Dach vereinen möchten. Die hervorragende Anbindung an die A73 – in nur 3min erreichen Sie die Autobahn – macht es zudem besonders attraktiv für Pendler Richtung Bamberg, Nürnberg oder Coburg.
Das Haus erstreckt sich über zwei Etagen und ist teilunterkellert. Der Grundriss ist funktional und großzügig, mit offenem Wohn-/Essbereich und sechs weiteren Zimmern auf zwei Etagen. Jedes Zimmer wurde mit mindestens zwei Netzwerksteckdosen und Hauseigenem Server/Switch ausgestattet. Auf dem Grundstück befindet sich ein Gerätehaus am Hang mit statisch vorbereitetem Dach für eine Terrasse mit Whirlpool, eine befestigte Terrassenfläche, Rasen und Gartenflächen mit Hecken sowie eine durchdachte Einfriedung: ein Metallzaun auf allen Seiten, eine massive Sandsteinmauer bei der Terrasse und ein vorbereitetes Leerrohr für ein elektrisches Tor an der Einfahrt. Für Fahrzeuge stehen ein hochwertiger Doppelcarport mit Stromanschluss und Lademöglichkeit für zwei E-Autos sowie bis zu 15 zusätzliche Stellplätze zur Verfügung. Die Einfahrt ist gepflastert und die Last sowie die Mauer am Hang ist für Maschinen bis 18t ausgelegt – ideal für gewerbliche Nutzung.
Das Haus wurde 2008 als Rohbau errichtet und 2020 vollständig neu aufgebaut, mit modernstem energetischen und bautechnischen Standard. Das technisches Baujahr ist somit 2020. Der Keller ist als WU-Konstruktion ausgeführt, die Außenwände bestehen aus 30cm Porenbeton mit 16cm WDVS, das Dach ist mit Tonziegeln gedeckt und gedämmt. Alle Fenster sind 3-fach verglast mit elektrischen Rollläden ausgestattet. Für hohen Wohnkomfort sorgt eine Fußbodenheizung (auch unter der Dusche) mit Einzelraumthermostaten und Kühlfunktion im Sommer. Die Luft-Wasser-Wärmepumpe von 2021 wird durch eine 9,75kWp PV-Anlage mit Batteriespeicher (5kWh, erweiterbar auf 10kWh) ergänzt. Für Sicherheit sorgen Bewegungsmelder, Tür-/Fensterkontakte, eine Kameraüberwachung, eine Alarmanlage sowie eine zentrale Feueranlage mit Sirene und Notfallmodus. Das Smart-Home-System (Somfy) steuert Heizung, Licht, Jalousien, Türkommunikation und Energieüberwachung – alles per App.
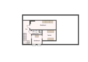
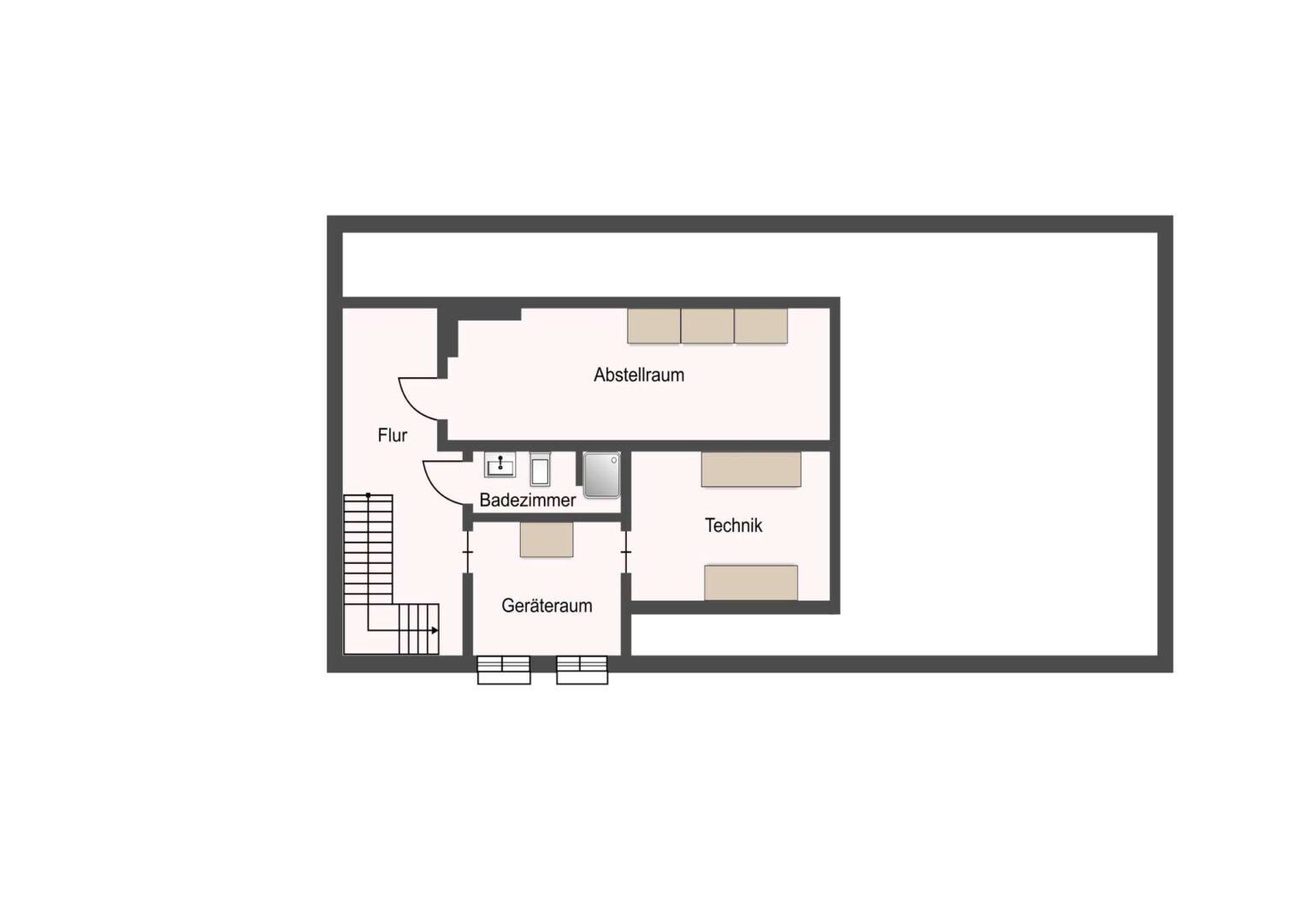
Im Erdgeschoss empfängt Sie ein heller Windfang mit satinierten Glaselementen. Das Tageslicht-WC mit wandhängendem WC, ein Vorratsraum, der Hauswirtschaftsraum mit Technikanschlüssen und ein zusätzlicher Lagerraum ergänzen das Raumangebot. Das Herzstück bildet der offene Wohn-/Essbereich mit 39,35m² und sichtbaren Deckenbalken. Die moderne Küche kann für 13.000€ übernommen werden. Auf der 24m² großen Terrasse können Sie gemütliche Stunden im Freien verbringen. Im Dachgeschoss erwarten Sie zwei helle Kinderzimmer (20,64m² und 18,02m²), ein ruhiges Arbeitszimmer, ein Gästezimmer sowie ein großzügiges Schlafzimmer mit angrenzender Ankleide (insg. 34,26m²). Das Badezimmer überzeugt mit bodengleicher Dusche, Badewanne und Doppelwaschtisch. Im Untergeschoss befinden sich ein gefliestes Bad mit Dusche, ein Geräteraum, ein Lager-/Abstellraum sowie der Technikbereich.
Dieses Einfamilienhaus ist mehr als nur ein Zuhause. Die Kombination aus hochwertiger Bauweise, energieeffizienter Technik, durchdachter Raumaufteilung, vielseitigen Nutzungsmöglichkeiten und exzellenter Lage macht es zu einem seltenen Angebot am Markt. Überzeugen Sie sich selbst bei einem persönlichen Besichtigungstermin.































