Hier erwartet Sie ein Zuhause, das alle Wünsche an modernes, komfortables und energieeffizientes Wohnen erfüllt: Dieses gepflegte Reihenendhaus verbindet Privatsphäre mit Familienfreundlichkeit in ruhiger Lage – und das bei direkter Anbindung an die A9 in nur 2min. Sofort bezugsfertig, ohne Renovierungsstau, bietet es mit einem eigenen Garten samt Gartenhaus, voll unterkellerten Nutzflächen, effizienter Nahwärmeversorgung durch die Stadtwerke Bayreuth und einer großzügigen Terrasse ideale Voraussetzungen für entspanntes Wohnen. Fußbodenheizung im Erdgeschoss, moderne Fenster mit Dreifachverglasung sowie elektrische Rollläden unterstreichen den hohen Wohnkomfort. Ein perfektes Zuhause für Familien, Berufspendler oder alle, die Wert auf Qualität und Lage legen.
Das 1996 erbaute Reihenendhaus erstreckt sich über drei Etagen mit einer Wohnfläche von 100,28m² und ist vollständig unterkellert. Auf einem 200m² großen Grundstück überzeugt die Immobilie durch ihre durchdachte Struktur. Im Außenbereich sorgt eine vollständige Einfriedung aus Holzzaun und Hecken für Privatsphäre. Der gepflegte Garten mit Gartenhaus eignet sich hervorragend für Freizeit und Familie. Der Zugang zur gepflasterten Terrasse erfolgt direkt vom Wohnzimmer aus. Zum Haus gehören ein Stellplatz im Reihencarport sowie ein gepflasterter Außenparkplatz, beide im Teileigentum und im Kaufpreis inklusive. Die klare Gliederung der Etagen sowie großzügige Fensterfronten schaffen eine helle, freundliche Atmosphäre im gesamten Haus.
Die Bauweise erfüllt höchste Ansprüche an Langlebigkeit und Energieeffizienz: Massive Kalksandsteinwände mit Vollwärmeschutz, Stahlbetondecken sowie ein gedämmtes Thermodach mit Betondachsteinen bilden die solide Grundlage. Kunststofffenster mit Doppelverglasung – im Wohnzimmer sogar dreifach – und teils elektrischen Rollläden sowie die moderne Nahwärmeheizung mit Plattenwärmetauscher sorgen für niedrige Energiekosten. Im Erdgeschoss sorgt eine Fußbodenheizung mit Raumthermostat für angenehme Wärme, in den übrigen Etagen Heizkörper mit Einzelraumregelung. Sämtliche Leitungen – ob Wasser, Abwasser, Heizung oder Elektrik – sind modern, vollständig gedämmt und in gepflegtem Zustand. Eine automatische Rückstauklappe mit selektiver Einstellung, DSL mit bis zu 250MBit und ein Satellitenanschluss runden die technische Ausstattung ab. Zuletzt erfolgten zahlreiche Modernisierungen wie neue Bodenbeläge, Rollläden mit Motor sowie der Austausch der Fensterfront im Wohnzimmer (2024). Auch Haustür, Dachfenster und Insektenschutz wurden in den letzten Jahren erneuert.
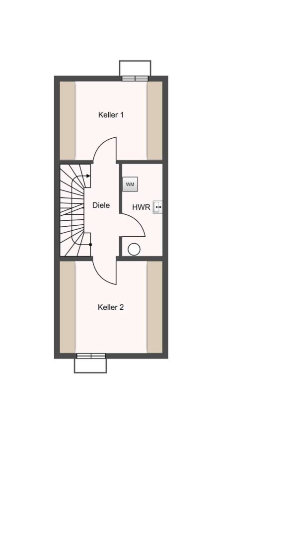
Der Grundriss bietet Raum für jede Lebenssituation. Im Erdgeschoss befinden sich ein helles Gäste-WC mit Fenster, eine kompakte Küche mit Einbauküche, eine lichtdurchflutete Essdiele und ein großzügiges Wohnzimmer mit neuer Fensterfront und direktem Zugang zur 19,55m² großen Terrasse mit Markise. Das Obergeschoss bietet ein freundliches Kinderzimmer, ein helles Schlafzimmer sowie ein Badezimmer mit Eckbadewanne, Fenster, Waschbecken und WC. Im Dachgeschoss ergänzt ein offenes Studio mit Holzdecke, bodentiefer Dusche im zweiten Badezimmer sowie ein Abstellraum mit Regalen das Raumangebot perfekt – ideal als Gäste- oder Arbeitsbereich. Im voll unterkellerten Untergeschoss stehen zwei große Kellerräume, ein Hauswirtschaftsraum mit Waschmaschinenanschluss und Technik, sowie ein gefliester Flur zur Verfügung. Eine durchdachte Raumaufteilung, viel Tageslicht und großzügige Nutzflächen schaffen eine wohnliche Atmosphäre mit hoher Funktionalität.
Dieses Reihenendhaus ist ein attraktives Gesamtpaket aus moderner Technik, gepflegtem Zustand und familienfreundlicher Lage – mit hervorragender Verkehrsanbindung und durchdachter Aufteilung. Es ist sofort bezugsfertig und bietet mit Garten, Terrasse, Carport, Stellplatz sowie voll nutzbarem Keller ein Maximum an Komfort und Effizienz. Einziehen, wohlfühlen und ankommen – genau das ist hier möglich. Zögern Sie nicht, dieses überzeugende Angebot persönlich kennenzulernen.
