Ein denkmalgeschützter Sandsteinquaderbau aus dem Jahr 1870 trifft auf attraktives Investitionspotenzial in Bestlage: Dieses charmante Mehrfamilienhaus in ruhiger Seitenlage, nur wenige Schritte vom Bayreuther Hauptbahnhof entfernt, verbindet historische Architektur mit überzeugenden Renditechancen. Die Immobilie überzeugt durch ihre Modernisierung sowie die zentrale Lage – ein Standortvorteil mit langfristig gesicherter Vermietbarkeit. Neben zwei großzügigen Wohneinheiten und einer langjährig vermieteten Gewerbefläche bietet das genehmigte Ausbaupotenzial im Dachgeschoss weitere Entwicklungsmöglichkeiten, ergänzt durch den Anbau von Balkonen und eines Glasaufzugs. Als Einzeldenkmal ist die Immobilie voll abschreibungsfähig gemäß Denkmal-AfA – ein erheblicher steuerlicher Vorteil für Kapitalanleger.
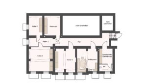
Das Anwesen erstreckt sich über drei Etagen mit einer vermietbaren Fläche von 513,95m² auf einem 709m² großen Grundstück. Im Erdgeschoss befindet sich die Gewerbeeinheit, das 1.Obergeschoss sowie das Dachgeschoss sind als Wohneinheiten konzipiert. Besonders hervorzuheben sind die ca.3,20m hohen Decken im Erd- und Obergeschoss. Das teilunterkellerte Haus verfügt über zahlreiche Abstellräume inklusive Kellerbar sowie zusätzliche 65,33m² Grundfläche im Dachboden, die vollständig zum Wohnraumausbau genehmigt sind. Im Außenbereich stehen neun Stellplätze zur Verfügung. Die massive Sandsteinfassade mit Zwerchhausrisalit, das echte Schieferdach und das denkmalgeschützte Erscheinungsbild verleihen dem Gebäude einen unverwechselbaren Charakter.
Die Einheiten sind klar strukturiert und bieten attraktive Mieteinnahmen mit Steigerungspotenzial. Die Gewerbeeinheit im Erdgeschoss mit 192,26m² wurde 2016 hochwertig saniert und ist an eine etablierte Physiotherapiepraxis vermietet. Das 1.Obergeschoss mit 198,41m² wurde 2013 saniert, verfügt über fünf Zimmer, hochwertige Ausstattung und Balkon und wurde im September 2023 neu vermietet. Türstöcke mit 2,33m Höhe unterstreichen das großzügige Raumgefühl. Im Dachgeschoss stehen 123,28m² (101,49m² + 21,79m²) mit fünf Zimmern zur Verfügung, wovon zwei über das Treppenhaus zugänglich sind. Die Einheit wird leerstehend übergeben. Die aktuelle Jahreskaltmiete aus EG und 1.OG inklusive Stellplätzen beträgt 40.574,40€. Bei Vermietung des Dachgeschosses zu 8,50€/m² ergibt sich eine Jahreskaltmiete von 53.149€, bei 11,50€/m² bis zu 57.587€. Das genehmigte Ausbaupotenzial sowie Balkon- und Aufzugsanbau könnten die vermietbare Fläche auf 561m² erhöhen.
Die Immobilie wurde stetig modernisiert und befindet sich in sehr gepflegtem Zustand. Massive Sandsteinwände, Holzbalkendecken und ein mit echtem Schiefer gedecktes Walmdach unterstreichen die historische Authentizität; die oberste Geschossdecke ist gedämmt. Die Fenster sind doppelt verglast: EG(2016), 1.OG(1991), DG(2001). Die Gaszentralheizung wurde 2021 eingebaut und wird über einen Contractingvertrag mit den Stadtwerken Bayreuth betrieben. Die Elektrik ist 3-adrig, FI-geschützt und in sehr gutem Zustand. Jede Einheit verfügt über eigene Strom-, Wasser- und Wärmemengenzähler, Glasfaser ist möglich. Sanierungen erfolgten 2016(EG), 2013(1.OG) und 2001(DG); zuletzt wurden 2024 im 1.OG die Dielen geschliffen und neu eingelassen. 2025 wurde die Baugenehmigung für den Ausbau des Dachgeschosses in zwei Wohnungen sowie den Balkon- und Glasaufzugsanbau bis 2029 verlängert.
Dieses Mehrfamilienhaus kombiniert denkmalgeschützten Altbau-Charme mit zukunftsorientierten Investitionsmöglichkeiten in bester Bayreuther Innenstadtlage. Mit attraktiver Mieterstruktur, sofort aktivierbarem Vermietungspotenzial, genehmigten Ausbaumöglichkeiten und steuerlicher Denkmal-AfA ist es eine ideale Kapitalanlage. Sichern Sie sich diese seltene Gelegenheit im Bayreuther Zentrum und kontaktieren Sie uns für einen Besichtigungstermin.












































