Zentrale Lage! Einfamilienhaus mit traumhaftem Grundstück und ELW in Aichig

Standort
95448 Bayreuth
Kaufpreis 429.000 €
Zimmer 5
Schlafzimmer 3
Wohnfläche ca. 169 m²

Details

Wohnfläche
ca. 169 m²
Grundstücksfläche
ca. 834,30 m²
Anzahl Zimmer
5
Anzahl Schlafzimmer
3
Anzahl Badezimmer
2
Anzahl Stellplätze
3

Objektbeschreibung

Willkommen in Ihrem neuen Zuhause – ein charmantes Einfamilienhaus mit Einliegerwohnung auf großzügigem Grundstück, das keine Wünsche offenlässt. Ruhig gelegen in einer familienfreundlichen Umgebung, bietet diese Immobilie den idealen Rückzugsort für alle, die naturnahe Ruhe schätzen und zugleich von einer hervorragenden Infrastruktur profitieren möchten. Nur 5 Minuten von der A9 entfernt, sind Sie optimal angebunden. Ob Mehrgenerationenwohnen, Vermietung oder Homeoffice – die flexiblen Nutzungsmöglichkeiten, die sofortige Bezugsfertigkeit und der gepflegte Zustand machen dieses Angebot zu einer seltenen Gelegenheit. Ein unausgebauter Dachboden mit ca. 60m² Wohnfläche bietet zusätzliches Potential für individuelle Wohnträume. Die Garage mit direktem Hauszugang und elektrischen Sektionaltor rundet das Angebot perfekt ab.

Das Haus überzeugt mit einer durchdachten Aufteilung auf zwei Etagen und einer Gesamtwohnfläche von 169,34m² – aufgeteilt in 111,49m² im Haupthaus sowie 57,85m² in der separat zugänglichen Einliegerwohnung. Das 834m² große, vollständig eingefriedete Grundstück ist ein Paradies für Familien mit Kindern, Gartenliebhaber und Ruhesuchende. Eine dichte Hecke schützt die Privatsphäre, während ein gepflegtes Gartenhaus zusätzlichen Stauraum bietet. Die gepflasterten Außenstellplätze und die geflieste Einzelgarage mit Strom- und Wasseranschluss sorgen für maximalen Komfort. Der separate Zugang zur Einliegerwohnung ermöglicht unabhängiges Wohnen unter einem Dach.

Die Bauweise kombiniert solide Substanz mit moderner Funktionalität. Das Erdgeschoss besteht aus einem 14cm starken, mit Mineralwolle gedämmten Holzständerbau, während das Kellergeschoss massiv mit 30cm starken Ziegelmauern errichtet wurde. Das Dach ist mit Betondachsteinen gedeckt und mit Styropor unter den Sparren gedämmt. Fenster aus Kunststoff mit Doppelverglasung (2002–2004) sorgen für gute Energieeffizienz, ergänzt durch elektrische Rollläden im EG und manuelle im UG. Zwei Dachflächenfenster wurden 1995 und 2015 erneuert. Die Ölheizung von Buderus (Niedertemperaturkessel, 2000, 21kW) wird regelmäßig gewartet und erhielt zuletzt 2025 einen neuen Kondensator. Die Elektrik ist mit FI-Schutzschaltern teilweise modernisiert, Internet über Kabelanschluss mit bis zu 1.000 MBit ist verfügbar. Die Immobilie befindet sich in einem gepflegten Zustand und bietet eine solide Basis für modernes Wohnen.

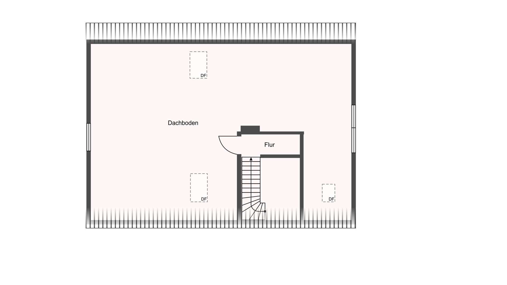
Im Erdgeschoss empfängt Sie ein heller Eingangsbereich mit einer Galerie samt beleuchteter Regalwand und eleganter Holztreppe, die Eindruck hinterlässt. Das Gäste-WC mit Tageslicht ist zeitlos gefliest. Die Küche punktet mit viel Stauraum, durchgehender Arbeitsplatte und natürlichem Lichteinfall. Ein flexibel nutzbares Kinderzimmer, das Schlafzimmer sowie ein geräumiges Tageslichtbad mit Wanne und Dusche bieten ideale Wohnbedingungen. Der offen gestaltete Wohn- und Essbereich mit großer Fensterfront schafft eine lichtdurchflutete Atmosphäre und öffnet sich zur Terrasse – perfekt für entspannte Stunden im Freien. Im Untergeschoss befindet sich die gemütliche Einliegerwohnung mit eigenem Wohn-/Ess-/Schlafzimmer, Küche, Badezimmer, sowie mehreren Dielen und praktischen Nebenräumen. Die geflieste Garage ist ebenfalls direkt vom UG aus zugänglich. Das Dachgeschoss mit Flur und unausgebautem Dachboden bietet nicht nur Lagerfläche, sondern auch Erweiterungspotenzial für weitere Wohnräume.

Dieses Einfamilienhaus mit Einliegerwohnung ist ein vielseitiges und durchdachtes Zuhause – ideal für Familien, Paare oder alle, die Arbeit und Wohnen kombinieren möchten. Die ruhige Lage, das große Grundstück, die flexible Raumaufteilung und der gepflegte Zustand machen dieses Angebot zu einer echten Rarität auf dem Immobilienmarkt. Überzeugen Sie sich selbst von den zahlreichen Möglichkeiten, die Ihnen dieses Objekt bietet, und vereinbaren Sie noch heute einen Besichtigungstermin.

Kontaktdaten

Herr Samuel Münch
Herr Samuel Münch
Nürnberger Straße 19
95448 Bayreuth

Grundrisse

Lage

In einer ruhigen Wohnsiedlung im südlichen Stadtgebiet von Bayreuth gelegen, befindet sich die Immobilie in einem gewachsenen, familienfreundlichen Umfeld mit gepflegten Einfamilienhäusern, Gärten und wenig Verkehr. Die Nachbarschaft ist geprägt von einer angenehmen Mischung aus jungen Familien, Berufstätigen und Senioren. Breite Gehwege, grüne Vorgärten und eine durchdachte Bebauung schaffen ein harmonisches Gesamtbild. Die Atmosphäre ist ruhig, sicher und lädt zu Spaziergängen oder dem Spielen der Kinder im Freien ein. Trotz der ruhigen Lage sind sämtliche Ziele des täglichen Lebens schnell und bequem erreichbar.

Infrastrukturell ist die Lage hervorragend: Einkaufsmöglichkeiten wie Supermärkte, Bäcker und Drogerien befinden sich in wenigen Fahrminuten Entfernung und sind teilweise auch fußläufig erreichbar. Kindergärten, Grund- und weiterführende Schulen sind im näheren Umkreis gut erreichbar. Ärzte, Apotheken sowie weitere Gesundheitsdienstleister sind ebenso in kurzer Zeit erreichbar und sorgen für eine umfassende medizinische Versorgung. Für Freizeit und Erholung bieten sich zahlreiche Möglichkeiten – von Spaziergängen im angrenzenden Wald über Sportanlagen bis hin zu den kulturellen Angeboten der Bayreuther Innenstadt. Ebenso die Eremitage oder das Fichtelgebirge sind einen Besuch wert. Cafés, Restaurants und Biergärten wie in der Fußgängerzone oder am Marktplatz laden zum Verweilen ein. Die Festspielstadt Bayreuth bietet darüber hinaus mit dem Richard-Wagner-Festspielhaus oder dem Markgräflichen Opernhaus sowie zahlreichen Veranstaltungen ein hochwertiges kulturelles Angebot.

Die Verkehrsanbindung ist ein weiterer großer Pluspunkt. Die Autobahn A9 ist in nur etwa 5 Minuten erreichbar, was eine schnelle Verbindung nach Nürnberg, München oder Berlin ermöglicht. Auch die Bundesstraßen B22 und B85 sind in wenigen Minuten zugänglich. Der Bayreuther Hauptbahnhof ist mit dem Auto oder öffentlichen Verkehrsmitteln gut erreichbar und bietet regelmäßige Verbindungen in die umliegenden Städte und Regionen. Eine nahegelegene Bushaltestelle sorgt für eine zuverlässige Anbindung an den Stadtverkehr. Auch der internationale Flughafen Nürnberg ist in rund einer Stunde mit dem Auto erreichbar und bietet zahlreiche nationale sowie internationale Flugverbindungen.

Die Lage dieser Immobilie vereint ruhiges Wohnen im Grünen mit urbaner Nähe und ausgezeichneter Erreichbarkeit. Sie profitieren von einer familienfreundlichen Nachbarschaft, einer sehr guten Infrastruktur und kurzen Wegen zu Freizeit, Kultur und Versorgungseinrichtungen. Die perfekte Anbindung an das Verkehrsnetz macht diesen Standort besonders attraktiv für Berufspendler und Familien, die Wert auf Wohnkomfort und Lebensqualität legen.

Energieausweis

Baujahr1975
Energieausweisliegt vor
Energie­ausweistypBedarfsausweis
Erstellt am09.01.2026
Gültig bis09.01.2036
PrimärenergieträgerÖl
EnergieeffizienzklasseF
Endenergiebedarf184,5 kWh/(m²·a)
HeizungsartZentralheizung
A+
A
B
C
D
E
F
G
H

Ausstattung

- 169,34m² Wohnfläche auf 2 Etagen plus ELW
- 834m² Grundstück mit viel Platz zur Entfaltung
- Sonniger Garten mit Gartenhaus und Hecke
- Gepflegter Gesamtzustand
- Sofort bezugsfertig ohne Renovierungsstau
- Große Terrasse mit Zugang vom Essbereich
- Geflieste Einzelgarage mit Strom und Wasser
- Ölheizung mit Buderus-Kessel (Bj. 2000) Niedertemperatur
- Kunststofffenster (2002–2004), Rollläden teils elektrisch
- Einliegerwohnung mit separatem Zugang
- Nur 5min zur A9 – ideal für Pendler
- Ruhige, familienfreundliche Wohnsiedlung
- Nähe zur Innenstadt, Kultur und Naherholung

-Bisherige Modernisierungen:
1995: 1x Dachflächenfenster Kunststoff doppelt verglast
2000: Ölheizung mit Niedertemperaturkessel
2002: Garage Kunststofffenster doppelt verglast
2002: Garagentor elektrisch
2002-2004: Kunststofffenster doppelt verglast (inkl. Eingangsbereich)
2011: Brennerrohr Ölheizung erneuert
2015: 1x Dachflächenfenster Kunststoff doppelt verglast
2019: Heizung: Sicherheitsventil und Rückschlagventil eingebaut
2025: Heizung: Kondensator gewechselt

Sonstiges

Der Käufer zahlt im Erfolgsfall an die Firma Dressel Immobilien GmbH eine Käufer- Maklerprovision in Höhe von 3,57% inkl. 19% MwSt. Die Provision errechnet sich aus dem beurkundeten Kaufpreis.
Dieses Exposé ist eine Vorabinformation, als Rechtsgrundlage gilt allein der notariell abgeschlossene Kaufvertrag.
Wir weisen auf unsere allgemeinen Geschäftsbedingungen hin.
Angaben des Eigentümers, der Eigentümerin / Auftraggebers, Auftraggeberin:
Alle Angaben beruhen auf uns vorliegenden Informationen des Auftraggebers nach bestem Wissen und Gewissen und sind freibleibend und unverbindlich.

Erhalten Sie das vollständige Exposé für diese Immobilie in Bayreuth

Im ersten Schritt benötigen wir nur Ihre Kontaktdaten, danach erhalten Sie zeitnah eine Mail mit dem vollständigen Exposé.