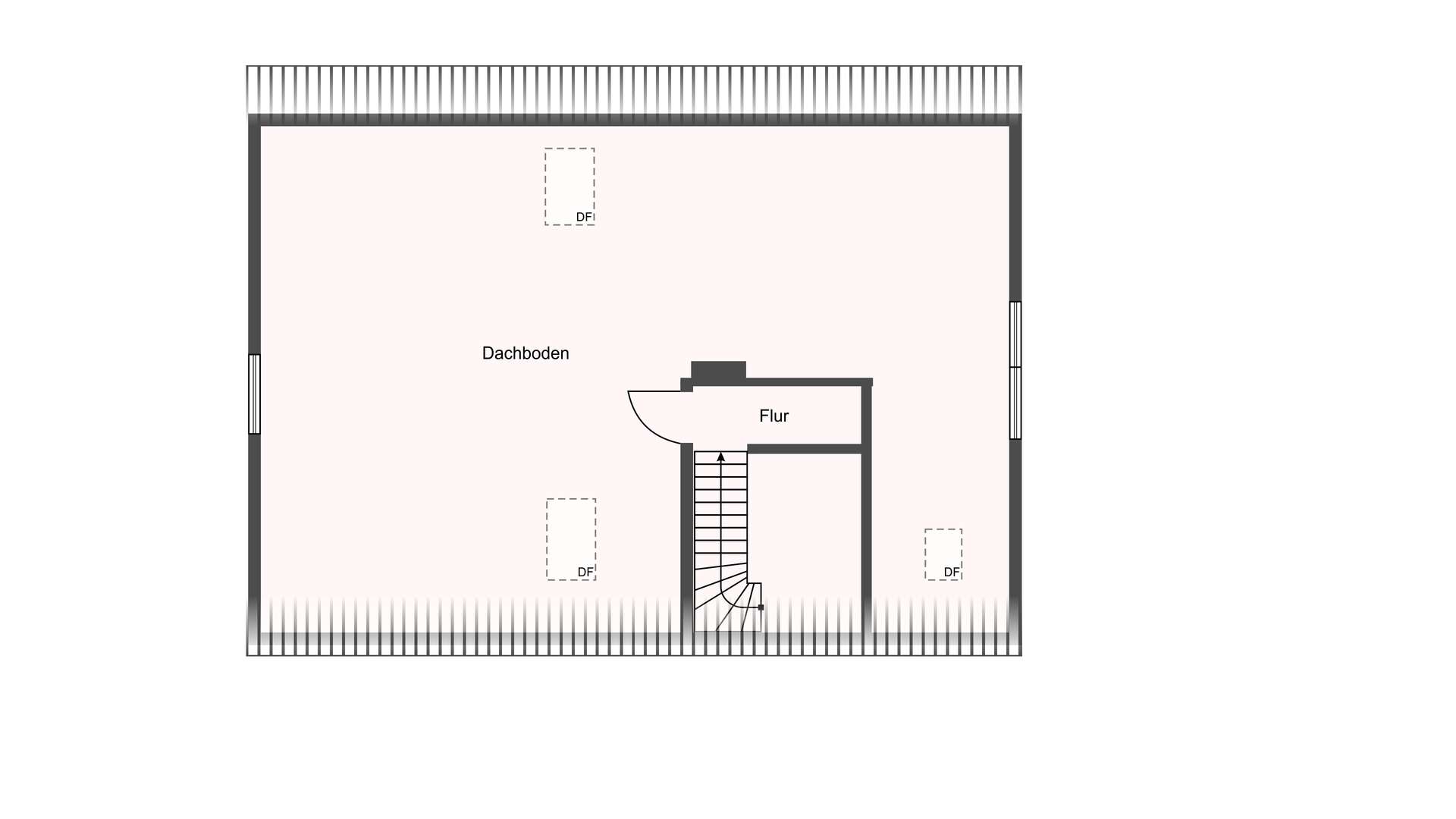
Willkommen in Ihrem neuen Zuhause – ein charmantes Einfamilienhaus mit Einliegerwohnung auf großzügigem Grundstück, das keine Wünsche offenlässt. Ruhig gelegen in einer familienfreundlichen Umgebung, bietet diese Immobilie den idealen Rückzugsort für alle, die naturnahe Ruhe schätzen und zugleich von einer hervorragenden Infrastruktur profitieren möchten. Nur 5 Minuten von der A9 entfernt, sind Sie optimal angebunden. Ob Mehrgenerationenwohnen, Vermietung oder Homeoffice – die flexiblen Nutzungsmöglichkeiten, die sofortige Bezugsfertigkeit und der gepflegte Zustand machen dieses Angebot zu einer seltenen Gelegenheit. Ein unausgebauter Dachboden mit ca. 60m² Wohnfläche bietet zusätzliches Potential für individuelle Wohnträume. Die Garage mit direktem Hauszugang und elektrischen Sektionaltor rundet das Angebot perfekt ab.
Das Haus überzeugt mit einer durchdachten Aufteilung auf zwei Etagen und einer Gesamtwohnfläche von 169,34m² – aufgeteilt in 111,49m² im Haupthaus sowie 57,85m² in der separat zugänglichen Einliegerwohnung. Das 834m² große, vollständig eingefriedete Grundstück ist ein Paradies für Familien mit Kindern, Gartenliebhaber und Ruhesuchende. Eine dichte Hecke schützt die Privatsphäre, während ein gepflegtes Gartenhaus zusätzlichen Stauraum bietet. Die gepflasterten Außenstellplätze und die geflieste Einzelgarage mit Strom- und Wasseranschluss sorgen für maximalen Komfort. Der separate Zugang zur Einliegerwohnung ermöglicht unabhängiges Wohnen unter einem Dach.
Die Bauweise kombiniert solide Substanz mit moderner Funktionalität. Das Erdgeschoss besteht aus einem 14cm starken, mit Mineralwolle gedämmten Holzständerbau, während das Kellergeschoss massiv mit 30cm starken Ziegelmauern errichtet wurde. Das Dach ist mit Betondachsteinen gedeckt und mit Styropor unter den Sparren gedämmt. Fenster aus Kunststoff mit Doppelverglasung (2002–2004) sorgen für gute Energieeffizienz, ergänzt durch elektrische Rollläden im EG und manuelle im UG. Zwei Dachflächenfenster wurden 1995 und 2015 erneuert. Die Ölheizung von Buderus (Niedertemperaturkessel, 2000, 21kW) wird regelmäßig gewartet und erhielt zuletzt 2025 einen neuen Kondensator. Die Elektrik ist mit FI-Schutzschaltern teilweise modernisiert, Internet über Kabelanschluss mit bis zu 1.000 MBit ist verfügbar. Die Immobilie befindet sich in einem gepflegten Zustand und bietet eine solide Basis für modernes Wohnen.
Im Erdgeschoss empfängt Sie ein heller Eingangsbereich mit einer Galerie samt beleuchteter Regalwand und eleganter Holztreppe, die Eindruck hinterlässt. Das Gäste-WC mit Tageslicht ist zeitlos gefliest. Die Küche punktet mit viel Stauraum, durchgehender Arbeitsplatte und natürlichem Lichteinfall. Ein flexibel nutzbares Kinderzimmer, das Schlafzimmer sowie ein geräumiges Tageslichtbad mit Wanne und Dusche bieten ideale Wohnbedingungen. Der offen gestaltete Wohn- und Essbereich mit großer Fensterfront schafft eine lichtdurchflutete Atmosphäre und öffnet sich zur Terrasse – perfekt für entspannte Stunden im Freien. Im Untergeschoss befindet sich die gemütliche Einliegerwohnung mit eigenem Wohn-/Ess-/Schlafzimmer, Küche, Badezimmer, sowie mehreren Dielen und praktischen Nebenräumen. Die geflieste Garage ist ebenfalls direkt vom UG aus zugänglich. Das Dachgeschoss mit Flur und unausgebautem Dachboden bietet nicht nur Lagerfläche, sondern auch Erweiterungspotenzial für weitere Wohnräume.
Dieses Einfamilienhaus mit Einliegerwohnung ist ein vielseitiges und durchdachtes Zuhause – ideal für Familien, Paare oder alle, die Arbeit und Wohnen kombinieren möchten. Die ruhige Lage, das große Grundstück, die flexible Raumaufteilung und der gepflegte Zustand machen dieses Angebot zu einer echten Rarität auf dem Immobilienmarkt. Überzeugen Sie sich selbst von den zahlreichen Möglichkeiten, die Ihnen dieses Objekt bietet, und vereinbaren Sie noch heute einen Besichtigungstermin.

































