Ihr neues Zuhause wartet auf Sie! Dieses moderne Einfamilienhaus bietet alles, was das Herz begehrt: eine ruhige, familienfreundliche Lage am Feldrand mit ländlichem Charme und optimaler Verkehrsanbindung zwischen Forchheim und Erlangen. Perfekt geschnitten, energieeffizient und hochwertig ausgestattet, bietet diese Immobilie mit 144m² Wohnfläche auf drei Ebenen modernes Wohnen für die ganze Familie. Genießen Sie den großzügigen Garten, die lichtdurchflutete Raumgestaltung mit einer beeindruckenden Galerie über dem Essbereich und die perfekte Kombination aus Natur, Komfort und modernster Technik. Bezugsfertig nach Absprache – der Traum vom Eigenheim könnte für Sie sofort Realität werden!
Das Haus wurde 2010 nach KfW-40-Standard auf einem 833m² großen Grundstück errichtet. Die strukturierte Aufteilung auf drei Ebenen umfasst ein Erdgeschoss, ein Dachgeschoss und ein Untergeschoss mit zusätzlichem Wohnraum mit Tageslichtfenstern dank der Lichtgräben. Die Außenanlage begeistert mit einem großzügigen Rasenbereich, teilweise eingefriedet durch eine gepflegte Hecke, die Privatsphäre gewährleistet, sowie einer Natursteinbegrenzung entlang des Grundstücks und liebevoll angepflanzten Sträuchern. Das Grundstück bietet ausreichend Platz für Freizeitgestaltung und Gartenfreuden, ergänzt durch eine genehmigte Planung für eine großzügige Doppelgarage. Die Freifläche vor dem Haus ist derzeit als Stellplatz für zwei oder mehrere Fahrzeuge nutzbar.
Die hochwertige Bauweise dieses Hauses überzeugt in jedem Detail. Dank der Außenwände mit ausgeschäumten 36,5cm Poroton-Ziegeln (KfW-40-Standard), ist es optimal isoliert und äußerst energieeffizient. Der Stahlbeton-WU-Keller und die Lichtgräben mit Granitblöcken sorgen für zusätzlichen Komfort. Dreifach verglaste Kunststofffenster sorgen für ein behagliches Wohnklima, ergänzt durch eine effiziente Sole-Wasser-Wärmepumpe mit Erdkollektoren, die sowohl die Beheizung des Hauses als auch die Warmwasseraufbereitung gewährleistet. Eine PV-Anlage mit 6,345kWp und attraktiver Einspeisevergütung (39,14ct/kWh bis 2029) macht das Haus außerdem zu einem finanziellen Vorteilspaket. Ein großzügiger 830-Liter-Warmwasserspeicher, eine komfortable Fußbodenheizung sowie ein 10-kW-Kaminofen zur Unterstützung der Heiztechnik runden die hochwertige Ausstattung ab.
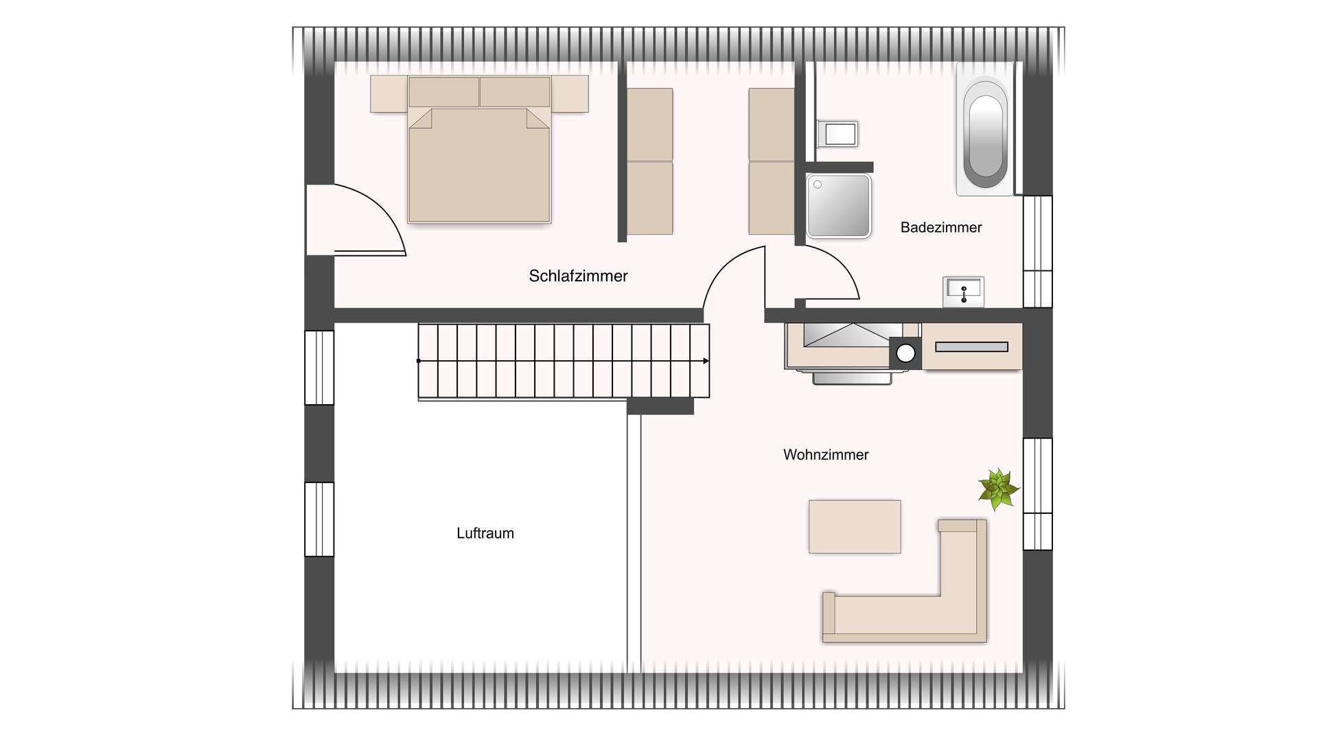
Im Erdgeschoss bildet der lichtdurchflutete Wohn- und Essbereich mit bodentiefen Fenstern und einer eindrucksvollen Raumhöhe von bis zu 5,42m das Herzstück des Hauses. Die moderne Einbauküche mit hochwertiger Granitplatte und neuen Einbaugeräten ist im Kaufpreis inklusive und mit angrenzender Speisekammer perfekt in das offene Raumkonzept eingebettet. Auf der Etage befinden sich außerdem ein Kinderzimmer, ein gefliestes Bad mit Dusche und ein separates WC mit Tageslichtfenster. Das Dachgeschoss beherbergt den großzügigen Masterbereich mit Schlafzimmer mit eigener Ankleide und Badezimmer mit Dusche und Badewanne. Im Wohnzimmer genießen Sie einen traumhaften Blick von der Galerie und einen stylischen Kaminofen für gemütliche Abendstunden. Im Untergeschoss finden Sie zudem ein weiteres Kinderzimmer und ein Arbeitszimmer, einen modernen Flur sowie Keller- und Technikräume. Das Badezimmer verfügt über sämtliche Anschlüsse für Dusche und WC und kann nach eigenen Wünschen fertiggestellt werden. Die durchdachte Raumaufteilung schafft ein durchgängig angenehmes Wohngefühl und bietet flexible Nutzungsmöglichkeiten.
Dieses einzigartige Einfamilienhaus vereint Komfort, Energieeffizienz und eine traumhafte Lage in einzigartiger Weise. Der pflegeleichte Gesamtzustand und die hochwertige Ausstattung ersparen Ihnen jeglichen Neubaustress – Sie können direkt einziehen und sich wohlfühlen! Ein weitläufiges Grundstück, moderne technische Standards und ein beeindruckender Wohnbereich machen diese Immobilie zu einem einmaligen Angebot. Vereinbaren Sie gleich einen Besichtigungstermin und überzeugen Sie sich selbst von diesem Wohntraum!
























