Dieses exklusive Immobilien-Ensemble stellt eine seltene Gelegenheit für Investoren dar, sich gleich zwei markante Objekte im pulsierenden Herzen der Kulmbacher Innenstadt zu sichern. Direkt in der belebten Fußgängerzone gelegen und nur wenige Schritte vom künftigen Unicampus sowie dem Bahnhof entfernt, vereint dieses Paket erstklassige Sichtbarkeit mit enormem Entwicklungspotenzial. Die unmittelbare Nähe zu einem öffentlichen Parkhaus mit Dauerparkplätzen garantiert eine exzellente Erreichbarkeit. Beide Objekte stehen derzeit vollständig leer, was Ihnen die einmalige Chance bietet, das gesamte Areal ohne zeitliche Verzögerung individuell zu projektieren – sei es als modernes Gewerbezentrum, attraktiver Wohnraum für Studenten oder als hochwertige Mischnutzung.
Das Paket besteht aus zwei um das Jahr 1900 errichteten Gebäuden, die zusammen eine beeindruckende vermietbare Fläche von rund 854 m² auf einer Grundstücksgesamtfläche von 477 m² bieten. Die Struktur der Liegenschaften ist durchdacht und flexibel:
Objekt 1 teilt sich in ein Vorderhaus an der Langgasse und ein Hinterhaus an der Basteigasse auf, ergänzt durch einen praktischen Lastenaufzug.
Objekt 2 erstreckt sich ebenfalls zwischen der Langgasse und der Basteigasse, verfügt über zwei separate Adresszugänge und steht unter Ensembleschutz.
Beide Immobilien bieten barrierefreie Gewerbeflächen im Erdgeschoss direkt zur Fußgängerzone sowie großzügige Ausbaureserven in den Dachgeschossen, um zusätzliche Wohn- oder Büroflächen zu schaffen.
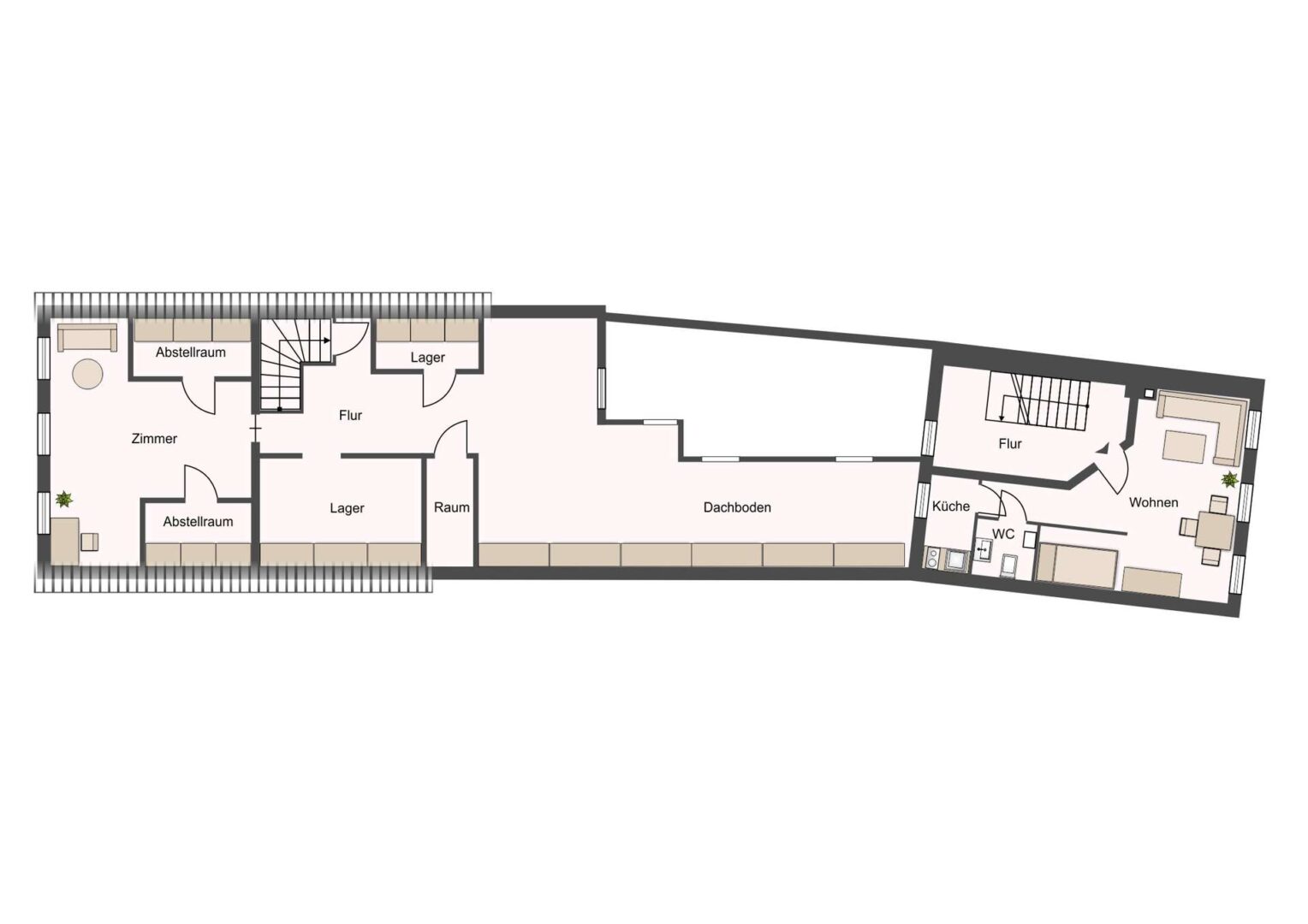
Haus 1 – 454 m² Fläche:
Das Vorderhaus erstreckt sich über drei Etagen plus ausbaubarem Dachboden. Hier befindet sich im Erdgeschoss eine 155 m² große, barrierefreie Ladenfläche. Im Obergeschoss stehen 108 m² für Büro- oder Wohnzwecke zur Verfügung. Das Hinterhaus an der Basteigasse bietet zwei weitere Wohneinheiten (ca. 30 m² und 60 m²), die sich ideal als Studentenapartments eignen. Beide Wohneinheiten wurden neu vermietet, die restlichen Einheiten bieten sofortiges Umbau- oder Neuvermietungspotenzial. Ein besonderes Merkmal ist der Lastenaufzug, der die Logistik innerhalb des Gebäudes erheblich erleichtert.
Haus 2 – 399,87 m² Fläche:
Dieses Objekt überzeugt durch seine klare Aufteilung auf drei Etagen. Das Erdgeschoss beherbergt eine 111 m² große Ladeneinheit mit internem Zugang zum ersten Obergeschoss. Dort befinden sich 160 m² vielseitig nutzbare Büroflächen mit fünf Zimmern und eigenen Sanitäranlagen. Das Dachgeschoss bietet auf 130 m² enormes Potenzial für den Ausbau zu modernen Wohneinheiten, wobei die Öffnung zum Dachboden hin beeindruckende Deckenhöhen ermöglichen würde. Haus 2 ist leerstehend und bereit für sofortigen Umbau oder eine Neuvermietung.
Beide Gebäude basieren auf einer soliden Massivbauweise mit Ziegelmauerwerk und klassischen Holzbalkendecken. Während Haus 1 mit modernen Kunststofffenstern (2014) und einer Lüftungsanlage im Gewerbebereich punktet, besticht Haus 2 durch seine gepflegte Substanz und ein Ziegeldach in gutem Zustand. In beiden Objekten wurde die Elektrik um das Jahr 2000 modernisiert und alle Einheiten sind für eine getrennte Abrechnung separat abgezählt. Die Beheizung erfolgt jeweils über zentrale Gasheizungen (Kupferleitungen in Haus 1 vorhanden), was eine verlässliche technische Basis für anstehende Modernisierungen darstellt.
Mit ihrer erstklassigen Lage in der Fußgängerzone, der soliden Bausubstanz und den flexiblen Grundrissen bieten diese beiden Häuser im Paket eine unvergleichliche Synergie. Nutzen Sie den Vorteil des vollständigen Leerstands, um Ihre Visionen ohne Einschränkungen und aus einer Hand umzusetzen. Ob kurzfristige Rendite durch Neuvermietung oder langfristige Wertsteigerung durch Projektierung – dieses Ensemble ist ein Eckpfeiler für jedes professionelle Portfolio.



























